8 logements individuels en location accession, Saint Quentin (02)
Crédit documents graphiques : Atelier du Rouget
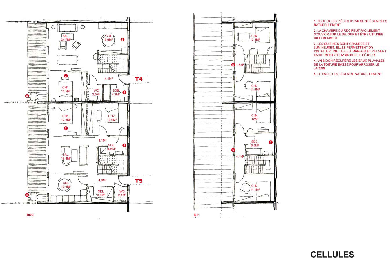
Lieu : 2 rue d’Alembert, 02100 Saint-quentin Maître d’ouvrage : Habitat Saint-Quentinois Maître d’oeuvre : Atelier du Rouget Simon TEYSSOU & associés (mandataire), Atelier de l’Ourcq - Félix Mulle, CAP INGELEC (bet tce), NJC Economie (bet opc) Calendrier : études en cours Coût prévisionnel des travaux : 1 468 376.06 € HT Maquette : Felix Mulle
8 logements individuels en location accession, Saint Quentin
Une enceinte habitée, dans le quartier Europe
Une ambiance urbaine spécifique et qualitative
Le quartier de l’Europe se caractérise par une texture urbaine typique des grands ensembles de l’urbanisme moderne. La palette des matériaux utilisés est réduite, et ceux-ci sont à chaque fois appliqués par de larges aplats : hauts murs percés de petites fenêtres, larges pelouses, grands arbres, étendues d’enrobés… Les objets bâtis qui peuplent le quartier sont grands, massifs et imposants.
Les voitures sont également très présentes. Articulées avec la végétation lorsque les stationnements sont plantés, elles participent aussi à la spécificité de l’ambiance urbaine ainsi qu’à ses qualités un peu brutalistes.
Une forme forte
Comment construire huit petites maisons au pied d’immeubles abritant chacun au moins 40 logements ? C’est le paradoxe et l’enjeu du projet.
L’environnement demande une « forme forte » pour y exister, pour pouvoir y répondre. Le contexte ne permet pas d’imaginer des assemblages trop subtils de matières ou de formes, ils y paraîtraient déplacés.
Lorsqu’on approche la parcelle, on aperçoit derrière le groupe scolaire une pinède. Par sa taille, elle dialogue avec les autres éléments du quartier tout en lui apportant une texture nouvelle.
Nous décidons de prolonger cette pinède sur notre parcelle, pour amplifier encore son effet.
Nous décidons ensuite de délimiter l’emprise des logements par une grande enceinte en brique qui court à travers les pins. La brique, nouveau matériau dans le paysage, doit être utilisée de manière massive pour dialoguer avec l’échelle de ce qui l’entoure.
Sur la limite nord-est de la parcelle, l’enceinte s’épaissit et décrit des alcôves qui accueillent les logements organisés en bande sur deux niveaux. L’ensemble fabrique une « forme forte », avec une matière dominante qui est la brique, dans laquelle l’échelle de la maison individuelle n’est pas immédiatement lisible.
L’extension de la pinède permet également de réorganiser le stationnement avec des parkings les plus plantés possible.
Dans cette forme forte installée durablement dans le paysage, c’est la vie et le temps qui passe qui viendront apporter les subtiles variations qui font le charme des lieux, par des séries d’ajustements, d’améliorations, d’appropriations.
















