L’arbre à pain (biocoop), Aurillac (15)
Lieu : 150 Avenue du général Leclerc, 15000 Aurillac Maître d’ouvrage : BIOCOOP L’arbre à pain Maître d’oeuvre : Atelier d'architecture Simon Teyssou AES (bet fluide) Responsable de projet : Anne Poulhès Entreprises : CUMINGE, Gros-œuvre - faïnce / BOUYSSE, Menuiseries bois : intérieures et extérieures Leybros, Cloisons – doublages / MDS, Plomberie - sanitaires – ventilation et Chauffage LARRIVET CHABREUIL ELECTRICITE, Électricité / COSTES, Serrurerie / S.AU.REV, Sols souples ARNAUD, Couverture - bardage métallique - étanchéité. Surface SHON : 1 528 m² Calendrier : juin 2009 à avril 2010 Coût des travaux : 266 276 € HT Crédit photographies : Christophe Camus
Biocoop, l’arbre à pain
Commerce Biocoop, l’arbre à pain
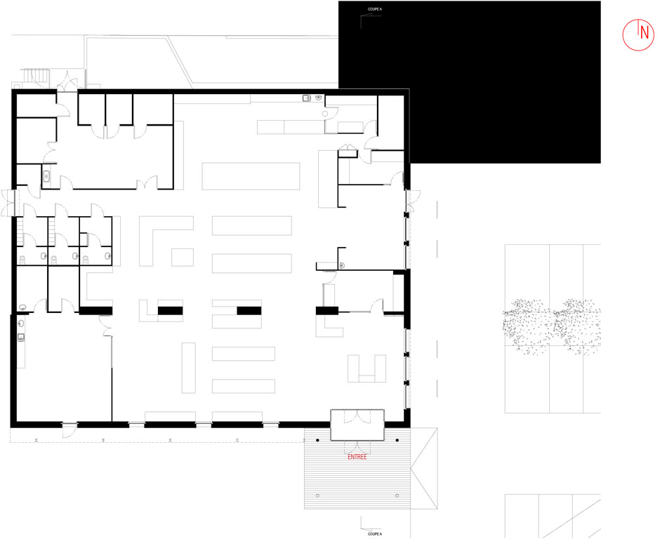
Le local commercial existant –MEUBLES AFFAIRES- est entièrement requalifié pour accueillir la BIOCOOP l’arbre à Pain. Les façades existantes sont habillées par un soubassement en gabion composé d’une résille métallique en acier galvanisé et d’un remplissage en galets de rivière d’Argentat (teinte : nuances de gris) et d’une partie supérieure en bardage métallique en acier identique (profil et teinte) au local commercial contiguë occupé par les CHEMINEES DES VOLCANS. Les menuiseries extérieures seront en bois peint de teinte identique au bardage en acier (gris anthracite). Les grilles de protection seront toutes posées à l’intérieur du commerce. Un volume en saillie marquera l’entrée de la BIOCOOP et abritera le sas d’entrée et des racks réservés au stationnement des vélos. Le sol sous le volume en saillie sera traité en caillebotis bois destiné à griser naturellement. L’accès des livraisons se fait par l’arrière, sur la façade nord. Le quai existant sera sommairement réaménagé pour faciliter les manœuvres des livreurs. La façade nord ne sera pas requalifier dans la présente tranche de travaux. Les abords sud du nouveau commerce seront plantés d’une prairie fleurie demandant très peu d’entretien. Un à deux fauchages annuels suffiront. La teinte dominante de la floraison de cette prairie fleurie sera le rouge. Un alignement de quatre érables champêtres sera plantée le long de la façade sud-est. La signalétique sera traitée sous forme de simples lettres découpées fixées sur le bardage métallique supérieur. A l’intérieur, l’ensemble des locaux techniques et locaux froids sont regroupés au nord libérant ainsi une large surface commerciale au sud.









