Création d’un groupe scolaire, Saint Sulpice Le Guérétois (23)
Crédit photos : Atelier du Rouget
Lieu : 23000, Saint Sulpice Le Guérétois Maître d’ouvrage : Commune de Saint Sulpice le Guérétois Maître d’oeuvre : - Atelier du Rouget Simon Teyssou & associés, Atelier de Montrottier Loïc Parmentier & associés, EUCLID (bet tout corps d’état), SIGMA ACOUSTIQUE (bet acoustique) Equipe de travail : Simon Teyssou - architecte dplg / Alexandre Bagros Murat - titulaire du diplôme d’architecte / Fabien Damas - titulaire du diplôme d’architecte / Antoine Paumier - titulaire du diplôme d’architecte / Christine Vaissière - assistante / Lamouroux Nicolas - Infographiste 3D / Manon Fayemendy - étudiante M2 ENSA de Paris Val de Seine / Maria Thébault - étudiante M2 ENSA de Grenoble Surfaces: 183 m² espaces intérieurs 1283 m² espaces extérieurs Calendrier : Concours perdu (classé 2nd) Coût des travaux : 3 550 000 € HT
Création d’un groupe scolaire à Saint-Sulpice-le-Guéretois
Note synthétique
Située à l’interface entre le centre-bourg et le futur éco-quartier, le nouveau groupe scolaire constitue une excellence opportunité pour articuler l’existant et l’aménagement projeté autour de la zone humide qui jouxte le bourg au sud-est. Il devient l’acte fondateur de cette extension de bourg.
Deux parcours associés à l’école fabriquent les conditions d’une couture entre l’ancien et le nouveau :
– Le premier est une liaison douce nord-sud avec la rue de Nave, rendue possible par la démolition d’annexes de l’école maternelle. C’est un parcours du centre-bourg vers la zone humide, rythmé de trois placettes qui articulent les accès aux équipements scolaires de la commune. Cet itinéraire est doublé d’un chemin de l’eau, mettant en scène la récupération des eaux pluviales en surface, de la toiture de l’école, par le biais d’une noue, jusqu’à la zone humide qui forme le coeur du nouvel éco-quartier.
– Le second est une voie carrossable partagée qui permet de desservir l’école en voiture. Sur ses bords elle organise le stationnement des personnels, le dépose minute, et la desserte des futurs lots à bâtir. La réalisation peut être phasée : un premier tronçon à double sens d’abord, puis le passage en sens unique avec la voie complète.
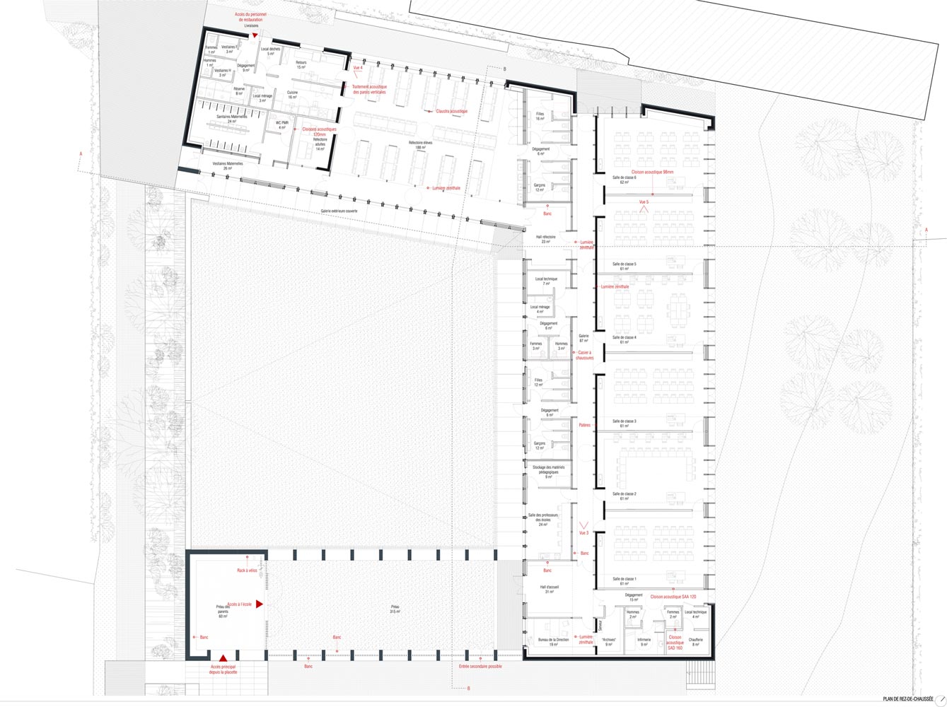
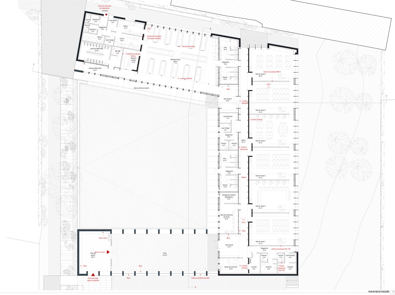
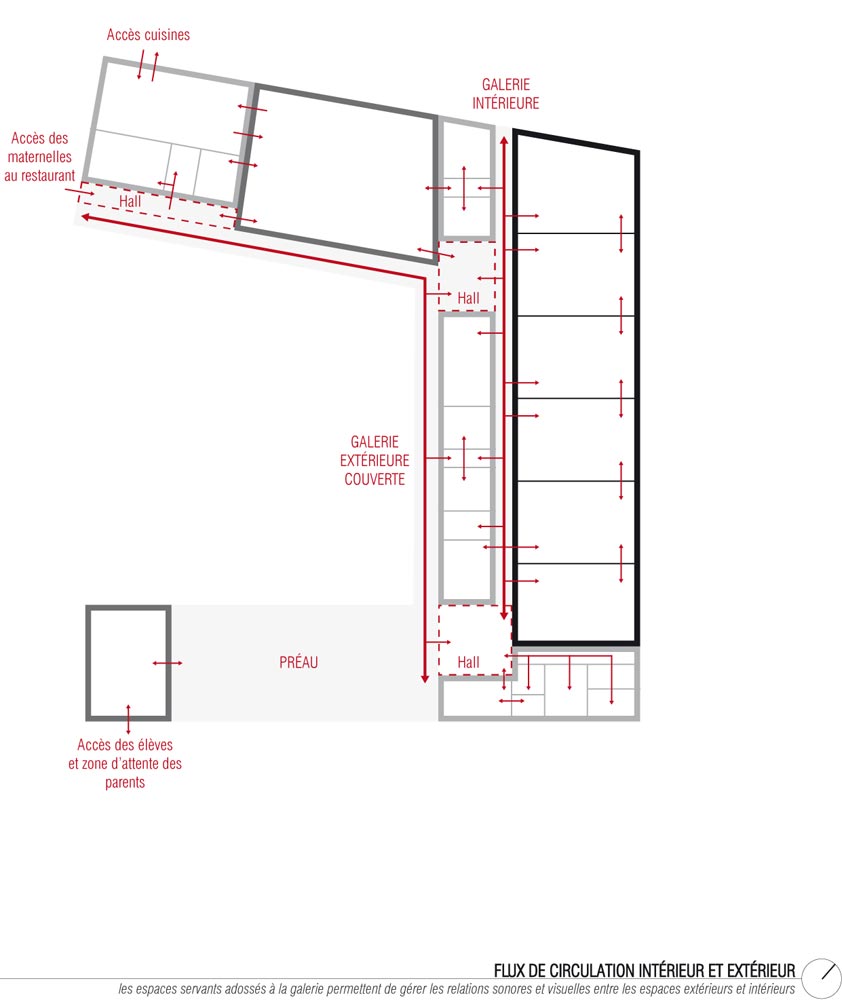
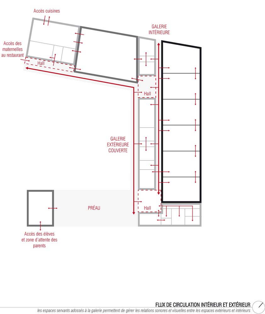
Au croisement de ces deux axes, l’école s’organise selon un plan en U. Cette typologie en forme de cloitre contient la cour de récréation ouverte sur la noue au sud-ouest. Les salles de classe et l’administration sont contenues dans l’aile nord-est. Le réfectoire et la cuisine sont disposées dans l’aile nord-ouest afin d’être directement accessible depuis la voie douce et les élèves de l’école maternelle. Le plan est refermé par le préau, qui fonctionne comme une interface entre la cour et l’esplanade. Ce positionnement lui permet de se transformer en halle en dehors des horaires de fonctionnement de l’école. L’organisation des espaces intérieurs autour des circulations (galerie et halls) permet d’utiliser séparément les différentes ailes.
L’organisation des salles de classe est à la base du projet. Le positionnement en enfilade des six salles permet de profiter de qualités égales : vue sur le jardin-verger et meilleure lumière possible (orientation nord-est, garantissant un éclairage diffus tout au long de la journée). L’utilisation de cloisons non-porteuses en fermacell permet d’envisager la fusion de plusieurs salles si nécessaire. L’organisation intérieure est dictée par l’usage : la faible profondeur garantit une bonne visibilité du tableau depuis tous les rangs (5m de distance depuis le dernier rang) tout en laissant place à des variantes dans l’organisation des tables, afin de répondre aux impératifs des différentes activités. Le long des parois sont aménagés des rangements, un point d’eau et des bureaux pour l’informatique. A la manière de tous les autres espaces, les plafonds sont traités acoustiquement.
Le double langage d’intériorité et d’ouverture se retrouve dans le dessin des façades. L’extérieur du U est réalisé en granite, entretenant un rapport avec les édifices anciens du bourg. A l’intérieur, les larges débords de toits forment une galerie extérieure couverte et protègent des murs ossature bois bardés de douglas. Les toitures sont réalisées en zinc afin de limiter l’impact visuel de l’école sur le reste du bourg tout en conservant la même teinte que les couvertures locales en ardoises. L’esthétique du projet repose finalement sur une écriture contemporaine attentive aux spécificités locales, sans tomber dans le piège du pastiche.
Une attention particulière est apportée au choix des matériaux intérieurs. Une qualité d’air maximale est recherchée pour les enfants. A titre d’exemple, l’ensemble des isolants mis en oeuvre est écologique (fibre de bois, laine de chanvre, ouate de cellulose). Le sol est en linoléum, un matériau naturel et les peintures sont saines.
La volumétrie du bâtiment privilégie les apports solaires actifs (panneaux solaires) et passifs par les baies vitrées sud-est et sud-ouest et par des sheds éclairant directement les espaces de circulation et fournissant un complément de lumière naturelle aux salles de classe. Les parois intérieures en béton complètent ce dispositif en accentuant l’inertie du bâtiment. Le principe de coupe favorise également la ventilation naturelle des locaux. Le projet sera conforme à la RT 2012, conforme aux exigences de l’appel à projet de la région et ira même jusqu’au niveau de performance du label EFFINERGIE +. En option nous vous proposerons d’atteindre le niveau de performance du label BEPOS, dans la limite du budget alloué au projet, notamment par une diminution des ponts thermiques ; par un renforcement des isolations, des vitrages et de la perméabilité à l’air ; par la mise en place d’équipements plus efficients et par un contrôle plus poussé des consommations. Le futur groupe scolaire revêtira donc un caractère exemplaire au sein de l’éco-quartier en construction.




















