Ecoquartier, hameau de la forêt, La Grand’ Combe (30)
Lieu : 30110, La grand combe Maître d’ouvrage : Mairie de la Grand Combe Maître d’oeuvre : virage - Atelier du rouget Simon Teyssou & associés - Atelier de Montrottier Loïc parmentier & associés - Atelier de L’Ourcq Felix Mulle & associés - Euclid Ingénieurie ( BET TCE) - Agence Franck Boutte (consultant & ingénierie en environnement) - Plus2 Paysages (paysagiste) Calendrier : Lauréat du concours Montant de l'enveloppe : 5 500 000 € HT Fiche projet : La Grand Combe
Ecoquartier du hameau de la forêt, La Grand’ Combe, Languedoc Roussillon (30)
Note synthétique
« L’identité et le pouvoir d’innovation d’un lieu sont garantis par la conservation de sa complexité. »
Alberto Magnaghi, Le projet local, Editions Mardaga, Liège, 2003
L’éco-quartier : un système en crise
Les éco-quartiers sont trop souvent des pièces urbaines performantes sur le plan environnemental, mais manquant de liens avec leur contexte. Ici, au vu des rares disponibilités foncières de la commune, c’est surtout un enjeu pour l’ensemble de la Grand’Combe. C’est pourquoi il est important de repenser ce que peut être un éco-quartier et construire non pas un morceau de ville autonome, mais un fragment riche de multiples relations : spatiales, sociales, historiques, économiques, environnementales ou en un mot : urbaines.
Un dessous hérité, un dessus à renouveler
Pendant plusieurs décennies, le visage de la Grand Combe a été façonné par l’exploitation de son « dessous ». Activités, logements et équipements ont été conçus pour et par la mine. Il en reste des cicatrices, mais aussi les fondements d’une identité : la logique de l’ingénieur a tiré des lignes tendues, modelé de grandes plateformes, construit des bâtiments rationnels. Par ailleurs, la vie des mineurs et de leurs familles a laissé d’autres traces, plus molles dans leurs géométries : des petites terrasses en pierre sèche où installer leurs jardins, des petits édicules pour leurs outils ou leurs voitures. Cette logique plus organique, du passage du temps et de l’usage des lieux, s’exprime aujourd’hui par le retour du naturel et de la friche. Dans le but d’affirmer l’identité des lieux et de ne surtout pas la lisser, nous pensons que la reconquête du « dessus » devra s’appuyer sur le ferment poétique que constituent ces deux énergies contraires : celle de l’ingénieur et celle de l’organique.
Le « déjà-là » comme ressource essentielle
Considéré pour ses aspects esthétiques mais également pratiques et économiques, le « déjà-là » sera la base de toute intervention sur le site. Il s’agit de révéler le lieu à lui-même, par touches successives, en revendiquant la dimension opportuniste d’une telle position mais également sa valeur culturelle. C’est une manière de repenser notre rapport à la consommation des ressources et d’affirmer que les traces du passé orientent nécessairement nos pas futurs. Si certaines actions structurantes doivent s’imposer sur le paysage, d’autres peuvent se contenter d’ajustements, dans une logique d’adaptation bienveillante de ce qui existe aux besoins d’aujourd’hui.
Le réalisme économique au centre du projet
Il est impossible aujourd’hui de penser un projet urbain en prenant comme a priori que tout y sera construit et vendu : qui pour habiter dès à présent sur ce site en friche ? Qui pour construire ces logements ? La manière dont les choses se fabriquent et leur temporalité est aussi déterminante que le reste, et l’incertitude sur ce point est intégrée à notre démarche. De façon très pragmatique, afin de développer une offre de logement complémentaire à celle qui existe dans les autres quartiers de la Grand’Combe, nous proposons d’explorer plusieurs pistes de montages opérationnels : appel classique à des promoteurs, l’habitat participatif, l’accompagnement à l’auto-construction, la simple définition de lots à bâtir, petite promotion, etc. C’est aussi la condition d’une véritable mixité urbaine.
À l’échelle du bâtiment, outre la maîtrise des coûts de construction, considérer l’économie comme centrale pose la question plus large des ressources et des entreprises locales. En activant les filières bois et pierre, mais aussi d’autres acteurs économiques, nous pensons que ce projet peut contribuer à les faire monter en qualité et les consolider économiquement.
Une balade ascensionnelle dans sept « situations habitées » (1 à 7) à travers trois éléments de liaison (A-B-C)
À partir d’une lecture attentive du « déjà-là » nous avons circonscrit sept situations, chacune porteuse d’un potentiel spécifique pour le renouveau du quartier. Ces « situations habitées » combinent constructions neuves et réhabilitations ; créations et simples reprises d’espaces publics ; programmes de logements et d’activité. Trois éléments de liaison sont identifiés afin de les mettre en relation entre elles et avec le reste du territoire. L’ensemble fabrique une image possible du futur quartier. Comme le dit Jean-Luc Godard, « ce n’est pas une image juste, mais juste une image », qui extrapole à partir des éléments de connaissance en notre possession actuellement. Par son pouvoir d’évocation, cette image est néanmoins le moteur d’émergence de projets, peut être tout à fait différents que ceux envisagés au départ.
Depuis le centre-ville en empruntant la vallée Ricard, la place basse (1) marque le seuil du nouveau Quartier de la Forêt. C’est un espace ouvert par un travail de défrichage et de démolition sélective qui fait l’articulation avec le fond de la combe. Les logements existants ont été réhabilités. Plus tard, un local associatif pourra y être implanté, ou un emplacement sera réservé à un équipement public dans la logique des grands objets de la vallée Ricard.
Depuis cette place, pour débuter l’ascension du coteau, on peut emprunter un parcours piéton. C’est la traverse Est-Ouest (A), nouvel élément structurant du quartier qui s’appuie sur les escaliers existants en partie basse et nous mène jusqu’au Camp Fougères.
Sur notre droite, nous longeons le jardin des ingénieurs (2a). À l’intérieur d’une enceinte qui accueillait anciennement des maisons plus cossues, des logements participatifs ont été construits, en articulant finement espaces partagés et espaces plus intimes. La qualité et la diversité de la végétation qui confèrent à ce lieu une atmosphère hors du commun a été préservée par l’implantation des nouveaux bâtiments.
Au nord de ceux-ci se trouve la cité de la Forêt (2b), déjà habitée au moment du projet. Par de petites interventions ciblées d’amélioration des logements et de leurs abords, elle a profité du renouveau global du quartier.
Toujours sur la traverse, nous croisons le promontoire des écoles (2c). Sur la gauche, l’ancien bâtiment a été transformé en pépinière d’entreprise par une réhabilitation exemplaire sur le plan environnemental. Des maisons- ateliers ont été construites à ses pieds. L’immeuble d’habitat collectif a été conservé pour diversifier l’offre de logements et accueillir décohabitants et célibataires.
Cet ensemble de trois sous-entités est relié par le renforcement de la structure végétale qui était présente initialement. Elles constituent ainsi le parc habité (2).
En haut de l’escalier existant qui a été conforté, nous atteignons le plateau des halles (3). À l’emplacement des anciennes casernes, quatre halles ont été implantées. Dans l’axe de la traverse Est-Ouest, une de ces halles reste ouverte, offrant un espace public ombragé. À terme, un ou plusieurs petits commerces pourront s’y installer. Construites par la commune, les autres halles ont été revendues par travées : des auto-constructeurs ont édifié leurs propres logements et des locaux d’activité sous ce toit commun. Le bois, particulièrement adapté à l’auto-construction, est mis à l’honneur.
Toujours sur la traverse, la montée du coteau nous fait pénétrer un bois. C’est la chênaie habitée (4) qui accueille dans sa partie haute des maisons à patios. Celles-ci ont été implantées librement sur des lots à bâtir et construites principalement en bois. Cela respecte la logique organique de la situation mais permet également une certaine évolutivité : du T3 au T6, les maisons peuvent s’adapter à l’évolution de la famille. Un accompagnement architectural des acquéreurs a permis d’assurer la cohérence de l’ensemble.
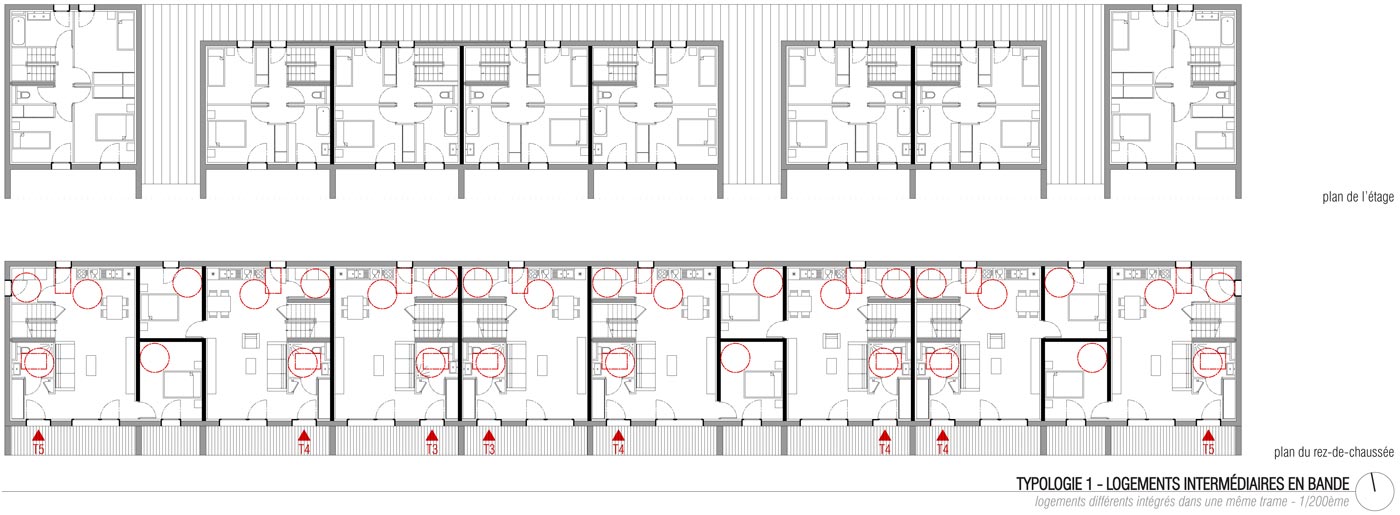
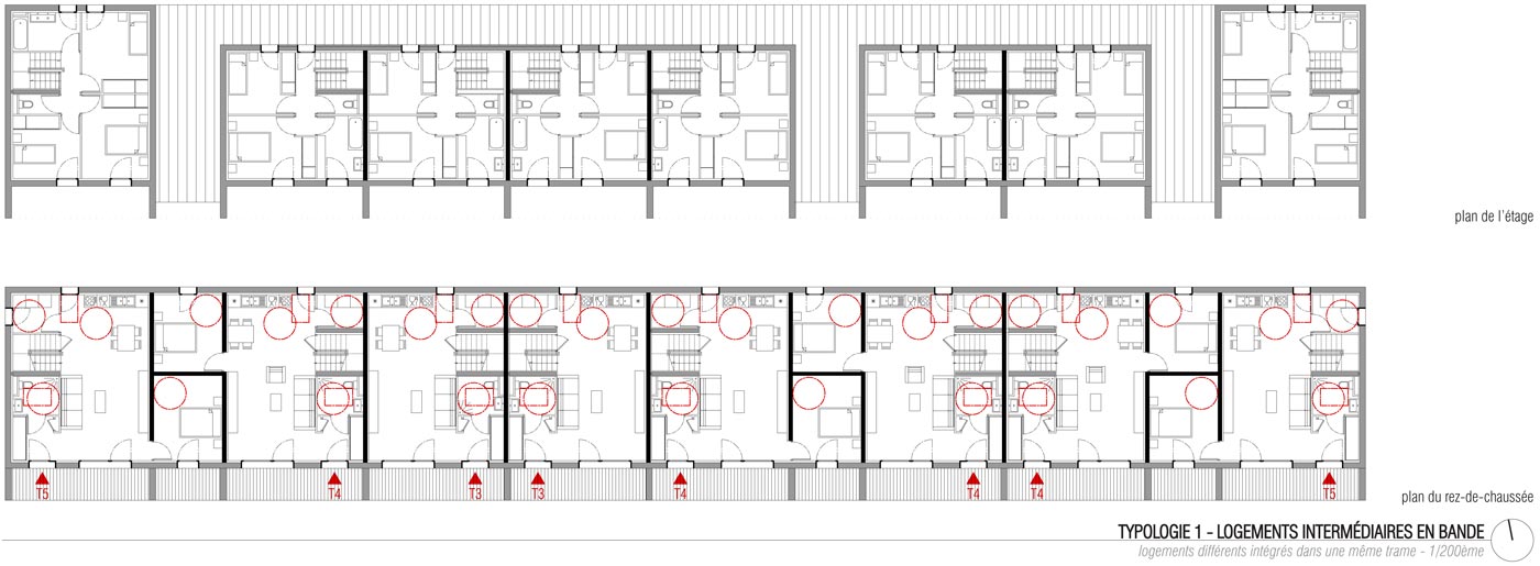
Ayant traversé la chênaie, nous arrivons enfin au Camp Fougères (5). Sur les terrasses laissées par les anciennes constructions, des bandes de logements ont été édifiées de manière relativement compacte le long d’un ouvrage hydraulique en béton de site. Parce que chaque terrasse était particulière, les typologies sont toutes différentes, du T2 au T5. Les bandes au nord, soit trente logements, ont été portées par un opérateur classique. Au sud, ce sont des maisons densément articulées que des familles elles-mêmes ont construites. Une esplanade publique est réservée au centre du système, et l’ensemble est relié par un réseau de venelles apportant de la fraîcheur en été. Chaque logement a un emplacement réservé à proximité immédiate pour la première voiture. Les autres véhicules des ménages peuvent stationner le long de voirie. Jetant une nouvelle lumière sur les lieux et attirant des initiatives, cette première opération a entraîné la reconfiguration de l’ensemble du quartier par un effet de levier.
Autour du Camp Fougères, la lisière cultivée (6) est une bande de 50M d’épaisseur constituée de jardins potagers et de vergers. Ceux-ci s’appuient sur les terrasses vernaculaires construites par les mineurs-jardiniers de l’époque. Pour les habitants, c’est un lieu convivial et partagé, support de projets communs ou individuels.
Plus loin, nous entrons dans la forêt des loisirs (7). Dans une épaisseur de 100m à partir de la lisière, c’est la partie la plus pratiquée d’une forêt. C’est le lieu des cabanes dans les arbres, des parcours de bicross, et le point de départ de randonnées. Il est également arpenté par les autres habitants de la Grand’Combe, et les touristes.
Si je suis en voiture, le serpent carrossable (B) s’enroule autour du Camp Fougères et me permet de rejoindre la place basse. C’est l’ancienne voirie confortée qui permet de desservir l’ensemble des situations habitées. Dans la partie nord du Camp Fougère, un nouveau bouclage permettra de relier directement la cité de la Forêt.
Sinon, je peux rejoindre la Grand’Combe par le sentier de l’Arboux. Avec la vallée Ricard, via le Quartier de la Forêt, mais aussi la place de la mairie, il forme la boucle de la Grand’Combe (C). C’est une nouvelle lecture de l’étendue géographique de la commune et une manière pour le quartier d’être raccordé au système urbain, autant spatialement que dans les représentations mentales.
Un quartier réinstallé dans son territoire
Porte d’entrée de la Grand Combe depuis le nord, le nouveau quartier ainsi constitué contribuera à borner un élément structurant de la commune qu’est la vallée Ricard, aujourd’hui bien peu lisible et difficile à faire muter. L’objectif à long terme est de renaturer le vallon et d’intégrer son chapelet d’équipements au paysage. De la place basse du Quartier la Forêt au parking du supermarché en passant par le centre de secours, cela permettra de réaffirmer le lien entre la ville et sa géographie et par-là retrouver le sens du nom :« La Grand’Combe ».granitiques, réalisation de dallages en plaques de gneiss pour les placettes et pour les seuils des habitations.



























