Ferme pédagogique, Omps (15)
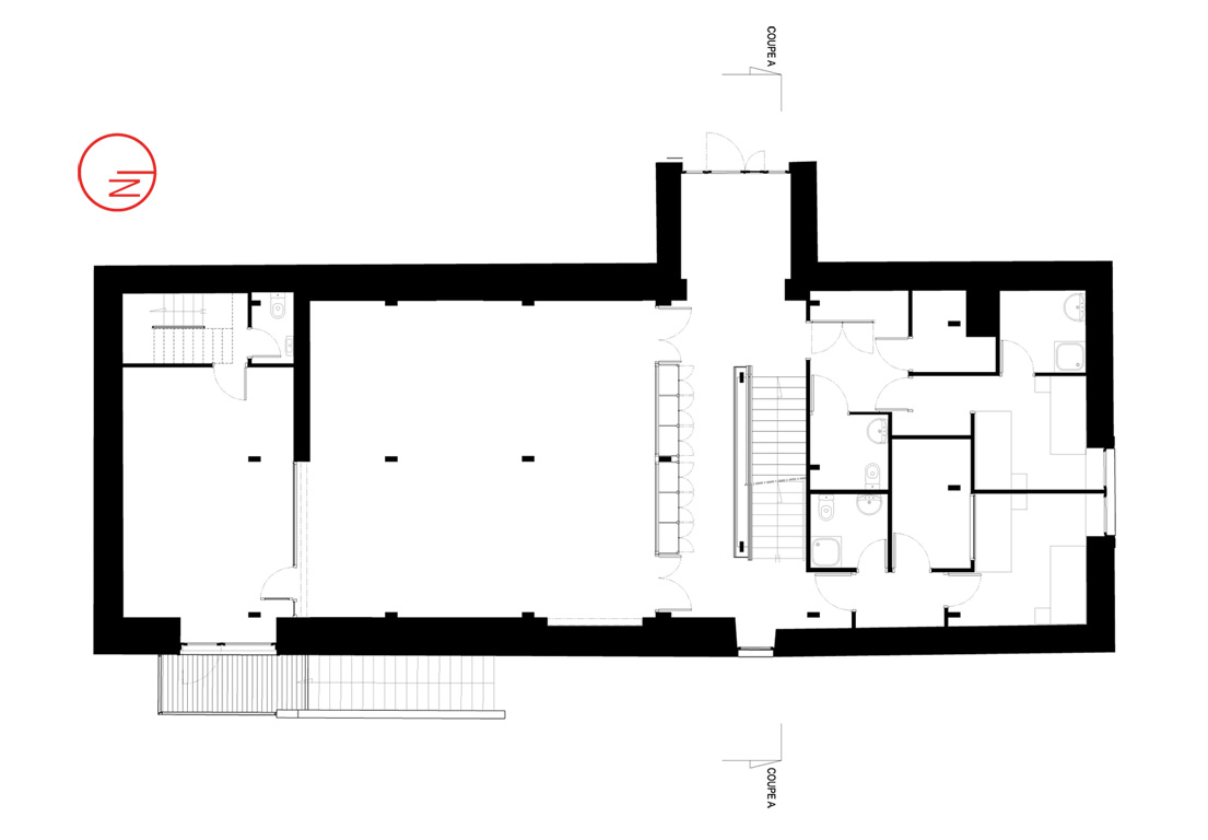
Lieu : Domaine de Daudé, 15290 Omps Maître d’ouvrage : Communauté de Communes Cère et Rance Maître d’oeuvre : Atelier d'architecture Simon Teyssou, IGETEC (bet structure béton), BET 3B (bet structure bois) Responsable de projet : Emilie Bernard Equipe de travail : MEALLET , Vrd - terrassement - assainissement / CUMINGE , Gros-oeuvre - struture - enduits extérieurs / BOUYSSE , Charpente - ossature - bardage - menuiseries extérieures bois/ SACAN , Couverture - étanchéité / LEYBROS , C loisons doublages / CANTAL MENUISERIE , Menuiseries intérieures / NTC , Plomberie - sanitaire - vmc - chauffage / A.T.E , Electricité - sécurité incendie / EQUIP FROID , Cuisine / SOL 15000 , Sols souples / BRUNHES JAMMES SA , Faïence - carrelage / COSTES , Serrurerie / BAYLE , Peinture Performances énergétiques de l'extension : HPE Surface SHON : 1 280 m² Calendrier : Durée du chantier 11 mois Coût des travaux : 1 285 000 € HT Crédit photographies : L'atelier. Crédit Image de synthèse : Poupart
La ferme pédagogique
Construction d’une ferme pédagogique à Omps
En collaboration avec la Communauté de Communes Cère et Rance en Châtaigneraie, ce projet a débuté en 2004 par une étude de faisabilité sur la pertinence de la reconversion d’un ancien domaine agricole de la commune de Omps en une ferme pédagogique destinée à recevoir des groupes d’enfants en court et long séjour. L’étude de faisabilité nous a permis de tirer parti au mieux des bâtiments existants, et de révéler la nécessité de créer un bâtiment d’hébergement neuf afin de permettre à la ferme d’accueillir l’équivalent d’un car scolaire, optimisant ainsi les taux de remplissage). Cette étude de faisabilité s’est concrétisée par la réalisation du projet.


















