Maison individuelle, Crandelles (15)
Lieu : Crandelles Maître d’ouvrage : Privée Maître d’oeuvre : Atelier d'architecture Simon Teyssou Responsable de projet : Emilie Bernard Entreprises : LABROUSSE , Gros-oeuvre - vrd - Enduits extérieurs BONAL , Charpente bois - menuiseries extérieures bois MAMBERT , Charpente métallique / ROUME , Couverture AURITOIT , Etanchéité / LAUMOND , Menuiseries extérieures bois DELPON , Platrerie - cloisons doublages - peinture BILLOUX , Plomberie - sanitaire - chauffage fioul BONNAUD , Electricité / BRUNHES JAMMES , Carrelage - faïnce A.C.C , Serrurerie Surface SHON : 300 m² Calendrier : 2003-2008 Crédit images : Christophe Camus Publication : Habitation à Crandelles, Cantal Revue « En Auvergne » Juillet 2009
Maison individuelle à Crandelles
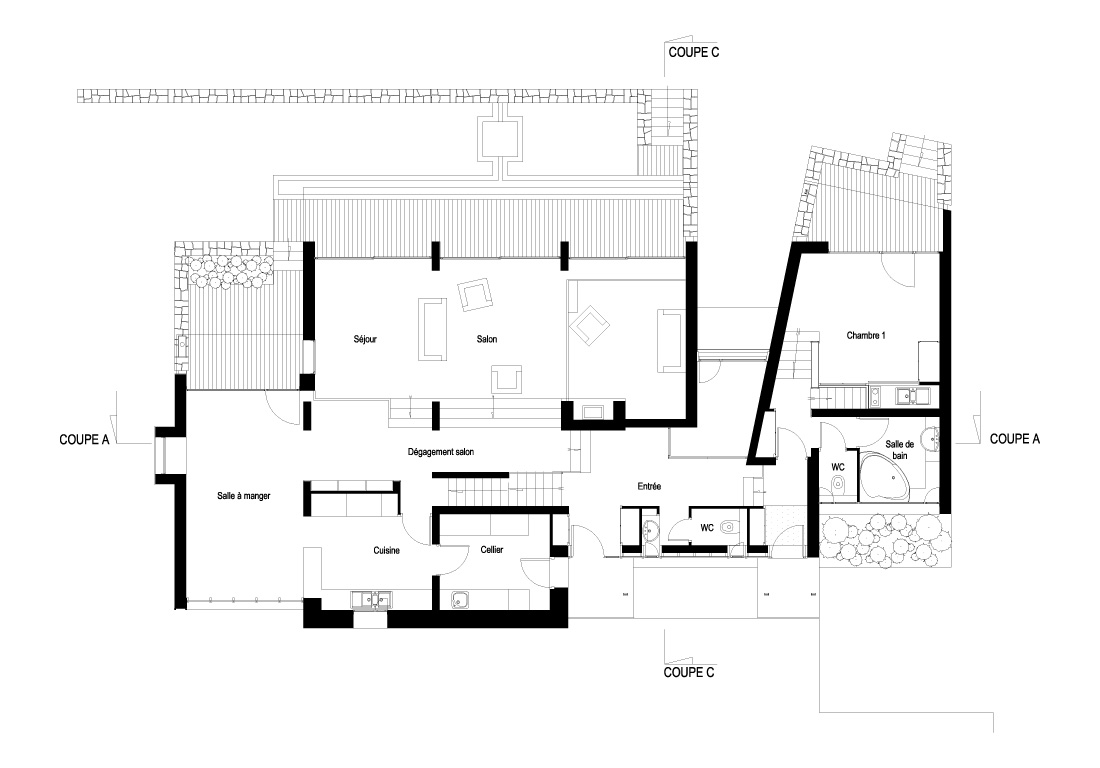
Maison en belvédère
Cette maison d’habitation est conçue comme un belvédère multipliant les points de vue sur le vallon creusé par le ruisseau du Meyrou à Crandelles. Les qualités des points de vue sont différenciées suivant les espaces intérieurs : vue cadrée par un espace extérieur couvert depuis la salle à manger, vue limitée par un vaste débord de toit et par un premier plan formé par une terrasse prolongeant l’espace intérieur depuis le séjour, vue à ras-du-sol depuis un auditorium en demi sous-sol, vues diverses depuis les espaces du premier étage avec, pour certaines d’entres elles, les toitures du rez-de-chaussée en premier plan. Une attention toute particulière est apportée à la topographie du lieu : la maison d’habitation devient un assemblage de plates-formes s’adaptant parfaitement au terrain naturel, disposition coïncidant avec la demande spécifique du maître d’ouvrage de multiplier les différences de niveaux à l’intérieur de la construction. A l’extérieur, des murets en schiste prolongent les volumes construits tout en établissant une transition entre bâti et sol.















