Maison individuelle, La Monédière, Chaumeil (19)
Lieu : La Monédière, Chaumeil 19390 Maître d’ouvrage : Privée Maître d’oeuvre : Atelier du Rouget Simon Teyssou & associés + BET 3B (BET Bois) Responsable de projet : Maxime Rodarie Surface de plancher : 91.96 m² Calendrier : 2014-2017
Palmarès Régional d'Architecture en Nouvelle Aquitaine (PRAd'A) 2019 : Mention catégorie S Article dans A Vivre 112
Maison individuelle à la Monédière, Chaumeil (19)
Les édifices existants du hameau de la Monedière sont indissociables des murets, murs de soutènement et édicules qui les accompagnent. Ces prolongements contribuent à la fabrication d’enclos ou de cours, définissent des parcours et créent des seuils.
Plutôt que de concevoir la nouvelle habitation comme un objet automne puis de l’ancrer au territoire par des ouvrages annexes, l’implantation choisie pour la maison redonne vie à des dispositifs existants peu à peu tombés en désuétude.
Elle est implantée dans l’enceinte du verger/potager et mise en tension avec le four du village et son fournil adjacent, en ruine. L’entre deux volumes fabrique un seuil et contribue à caractériser la terminaison du chemin creux qui borde la parcelle au Nord. En manque d’usage, le chemin est exploité pour desservir l’habitation par un passage percé dans l’enceinte du verger/potager, en face de l’ancien fournil.
Seuls habitants de la Monedière à l’année, Stéphanie et Cédric en sont les gardiens. L’implantation de la nouvelle habitation tient compte de ce paramètre. Le site choisi est stratégique. Il permet d’embrasser le territoire sud de la ferme : les terres cultivées au premier plan, les pâturages occupant les coteaux et le sommet du Puy. Il permet aussi de garder un œil sur les allers et venues des visiteurs qui se rendent à la maison familiale en bas du hameau et à l’ancienne étable attenante, transformée en atelier de transformation de produits agricoles et en boutique ouverte au public.
La demande portait sur une habitation compacte, de petite dimension, avec une certaine complexité spatiale. Trois influences ont orienté la commande. Le vernaculaire local caractérisé par des lits clos disposés dans la pièce principale. L’architecture moderne illustrée par des références de Charlotte Perriand articulant architecture et mobilier. La tradition japonaise exaltant le rapport entre intérieur et extérieur.
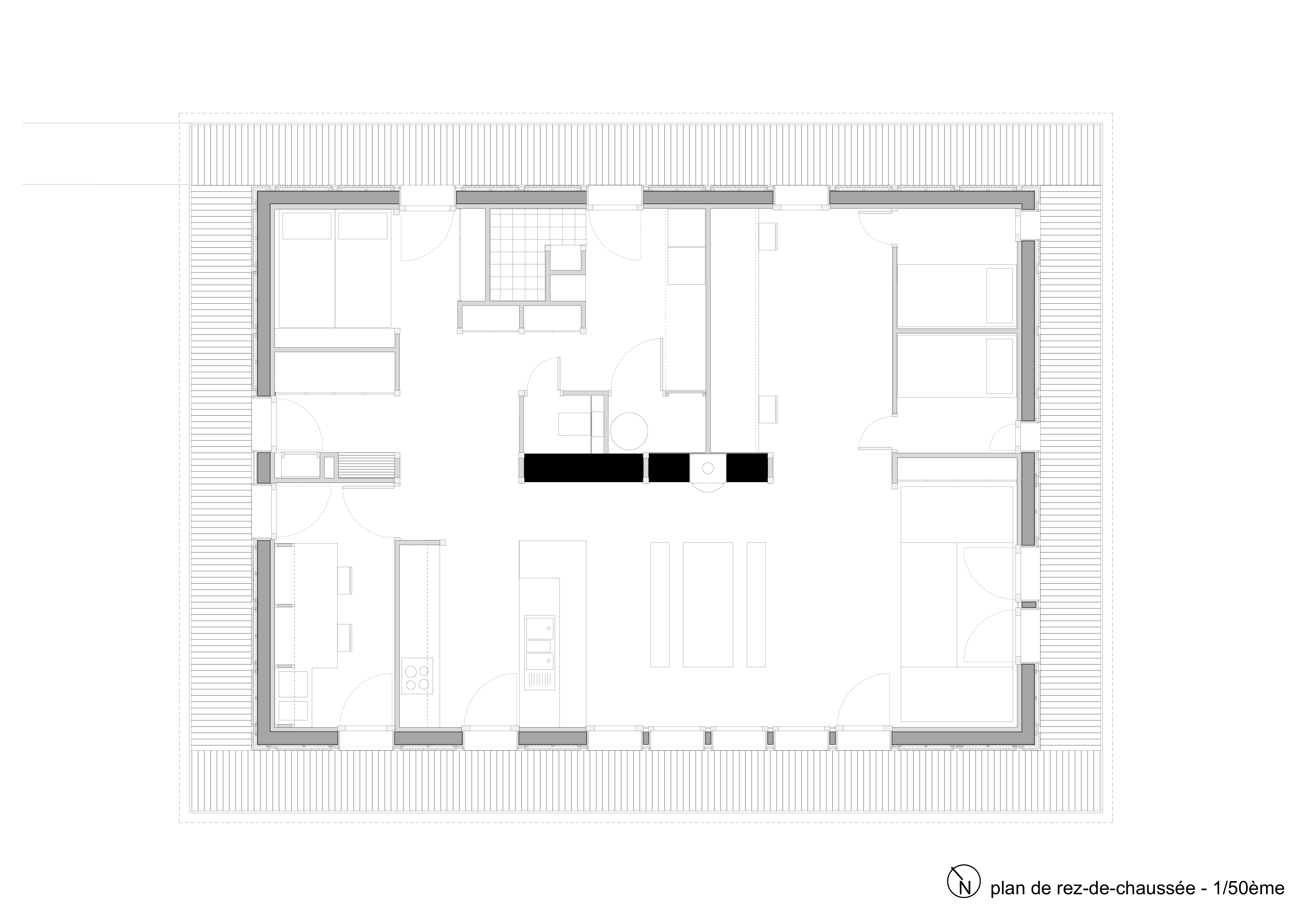
L’architecture proposée fait une synthèse de cette triple demande. Elle apparait en contraste avec les édifices existants du hameau, massifs et ancrés dans le sol. La maison est en bois. Elle se déploie à l’horizontal selon un plan compact et se décolle du sol. Le toit est constitué d’un empilement de trois réseaux de poutraison croisés à angle droit, support d’une toiture terrasse végétalisée. Les débords de toit sont couverts en zinc et abrite un parcours surélevé entourant la maison. Les façades en douglas sont tramées selon le rythme de la charpente. Elles sont plus ou moins ouvertes en fonction des orientations et des apports solaires recherchés. L’entrée fait face au four, sur le pignon nord-ouest.
Un mur de refend, composé d’une ossature et d’un remplissage maçonné en terre, scinde la maison en deux parties. Un poêle à buches est adossé au mur. Réduits au minimum, les espaces de couchages, un espace partagé pour les enfants, la salle de bain et le sanitaire sont au nord. Le bureau, la cuisine et la pièce commune se retrouvent au sud. C’est dans cet espace que sont aussi disposés six tatamis pour le couchage des parents. La pièce commune s’ouvre largement sur l’extérieur par les façades sud-est et sud-ouest. Cette double orientation multiplie les perceptions depuis les espaces habités vers les terres de l’exploitation.
La maison a été en grande partie réalisé par les maitres d’ouvrage, dans le strict respect des plans détaillés fournis par l’équipe de maitrise d’œuvre.
Crédit documents graphiques : Atelier du Rouget
Crédit photos : Atelier du Rouget








































