Maison individuelle, Le Rouget (15)
Lieu : La côte rouge, 15290 Le Rouget Maître d’ouvrage : Privée Maître d’oeuvre : Atelier d'architecture Simon Teyssou Responsable de projet : Emilie Bernard Entreprises : COMMERLY , gros-oeuvre / AUVERGNE DALLAGE , chape industrielle MAMBERT , charpente métallique - couverture - zinguerie SACAN , ctanchéité / EURODECOR , menuiseries extérieures alu COSTES , serrurerie Surface SHON : 207 m² Calendrier : 2005, durée des travaux 10 mois Crédit images : Christophe Camus, Normand Achim Publication : Habitation au Rouget, Cantal Architecture Acier Construction, Septembre 2007
Maison individuelle au Rouget
La maison dans la pente
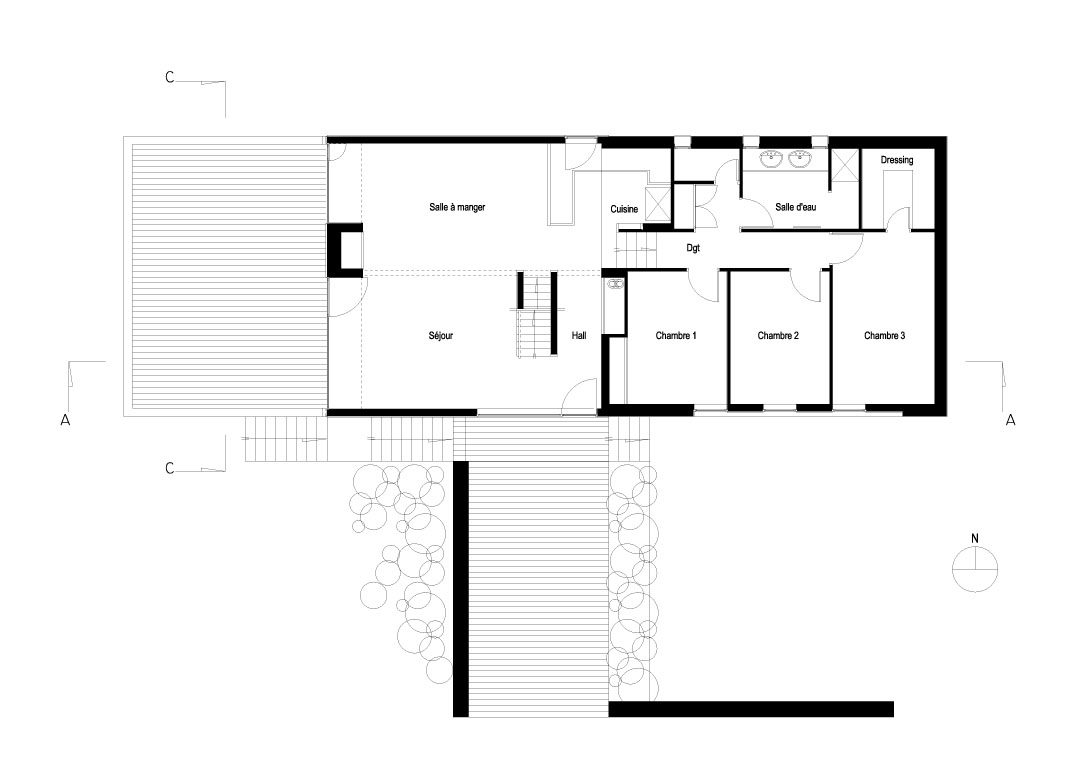
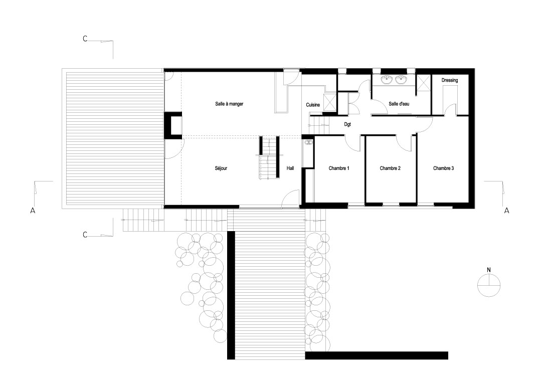
Le projet a pour objet la création d’une maison implantée en lisière de bourg à proximité de parcelles fortement boisées. La maison s’adapte à la déclivité du terrain : un jeu de différences de niveaux permet à tous les étages de l’habitation une sortie de plein pied dans le jardin. Une large terrasse en mélèze surplombant le bourg prolonge le séjour et la salle à manger à la manière d’un belvédère. Le volume volontairement contemporain et le toit sont recouverts d’un bardage acier gris anthracite pour les espaces de vie, alors que l’espace des chambres ainsi que le volume du garage seront en maçonnerie enduite de couleur rouge.












