Bâtiment à usage mixte, logements et bureaux, Le Rouget (15)
2010 : Sélectionné dans le cadre de l’appel à projet bâtiments démonstrateur d’énergie, ADEME et Conseil Régional d’Auvergne 2015 : Prix Régional de la construction bois : Mention du jury dans la catégorie « Aménagement intérieur » 2016 : Prix National de la construction bois : Finaliste 2019 : Valeurs d’Exemple Auvergne-Rhône-Alpes, Catégorie Habitat groupé et collectif construction neuve : Finaliste
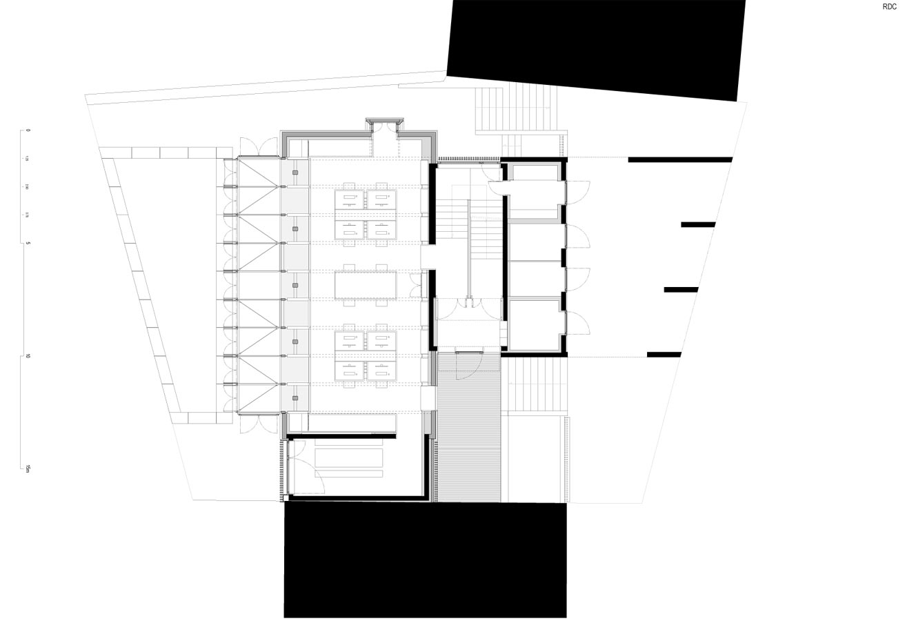
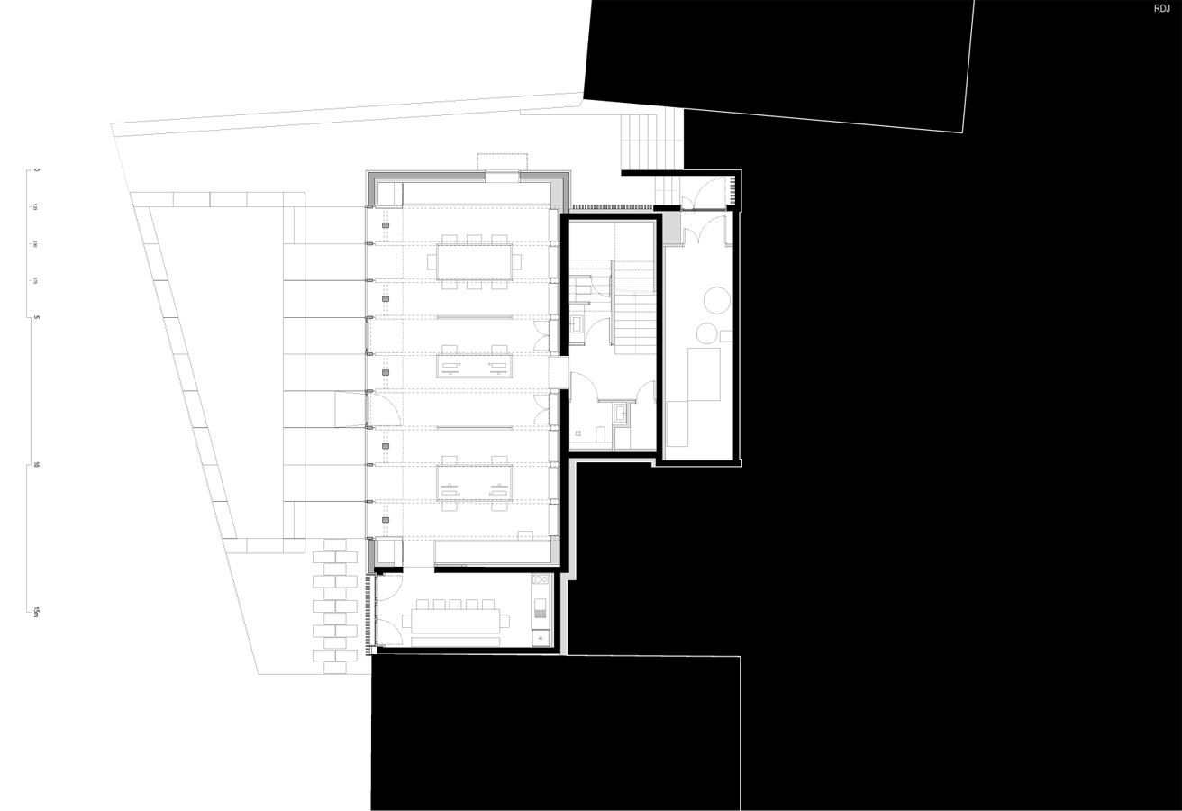
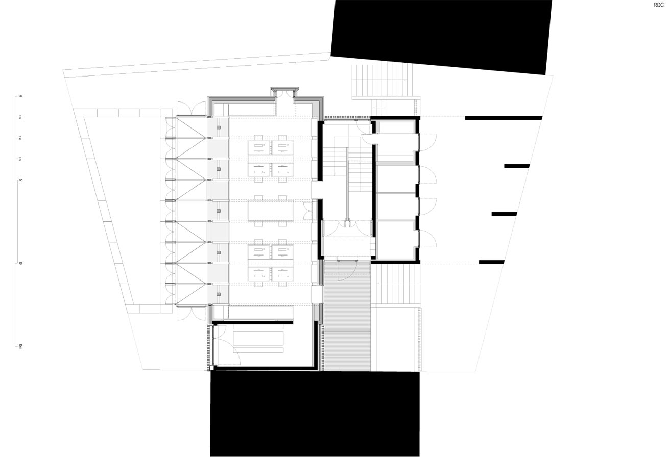
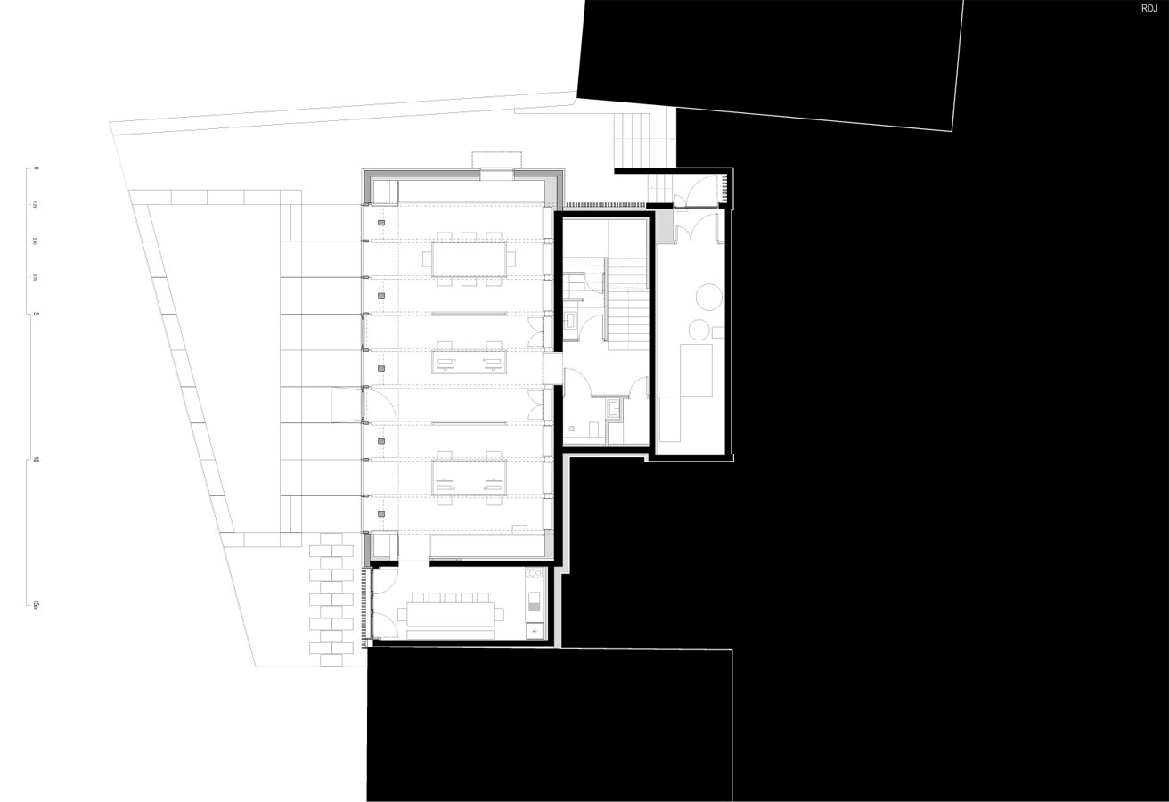
Lieu : 46 avenue du 15 septembre, 15290 Le Rouget Maître d’ouvrage : Privée Maître d’oeuvre : Atelier du Rouget Simon Teyssou & associés, BET 3B (bet structure bois), SETERSO (bet structure béton), AES (bet fluides) Responsable de projet : Franck Bassin Entreprises : MEALLET , Terrassement / LONGUECAMP , Terrassement techniques / CUMINGE , Gros-oeuvre MONTEIRO , Maçonnerie pierre / AST , Charpente métallique BOUYSSE , Charpente bois - ossature bois - bardage - menuiseries extérieures et intérieures bois EURODECOR - EGRISE-MILLION SA , Fourniture vitrage / TRMR , Pose vitrage RANZINI , cloisons doublages - peinture / SARL ETC , Plomberie - chauffage - chaudière bois BERAUD , Electricité - ventilation / ACC , Serrurerie Surface SHON : 654.84 m² Calendrier : Livré depuis juillet 2014 Performance énergétique : BBC Publications : d'a - d'architecture n° 232 Séquence bois n° 104 - Structures
L’atelier, immeuble mixte à usage de bureaux et de logements
Construction de nos locaux de travail ainsi que 3 logements
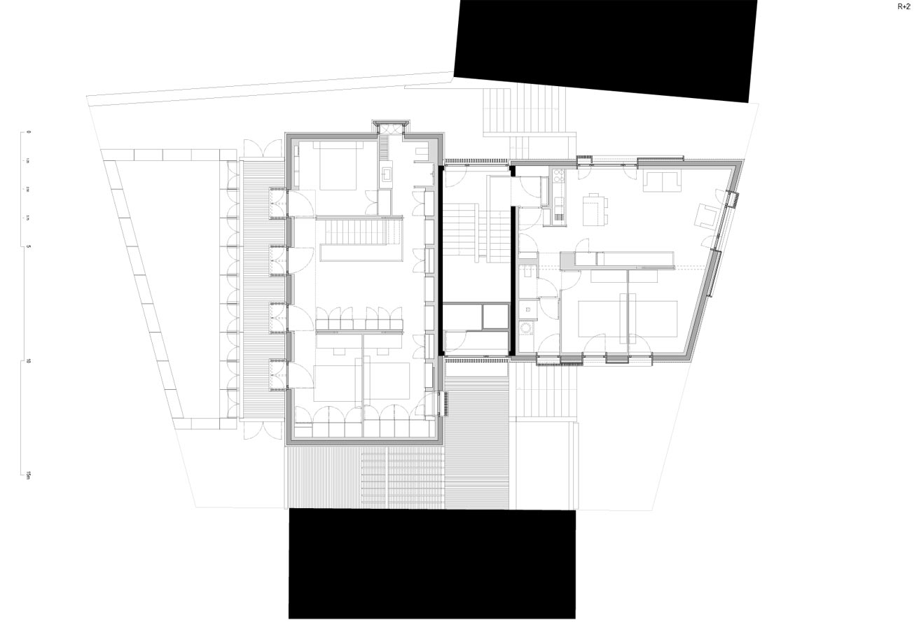
Situé au Rouget, l’immeuble comprend un atelier d’architecture et trois logements. Il est implanté sur une parcelle libre, le long de l’avenue du 15 Septembre.
Le projet est conçu selon des principes climatiques et thermiques simples : hiérarchie des percements, rez-de-jardin enterré au nord, compacité et densité. Le confort thermique est garanti par la présence de masses en béton et de chapes rapportées en ciment, exploitées pour leur inertie. Entièrement vitrée pour capter le rayonnement solaire, la façade sud se dédouble pour créer des interstices, convertis en espaces intermédiaires privilégiés. Au rez-de-jardin, un espace en double hauteur, contenu entre la façade rideau en verre et les volets suspendus à une structure métallique déportée, qualifie le parcours entre intérieur et extérieur et caractérise le seuil. Au deuxième étage, une loggia prolonge les espaces intérieurs du duplex. Au troisième et dernier étage, le toit-terrasse de la loggia devient un balcon sur le paysage lointain de la Châtaigneraie.
L’élévation sud se distingue des autres, tout comme les façades principales et hiérarchisées des bâtiments historiques du Rouget se différencient des autres par des compositions symétriques classiques. Ici, pour autant, la façade sud abandonne les logiques de composition conventionnelles pour exprimer la volonté de capter l’énergie solaire à certains moments, de s’en protéger à d’autres, de vivre et de comprendre la course du soleil et de faire l’expérience du cosmos.
Le choix du matériau principal de construction de l’édifice raconte, à travers l’exploitation de ses matières premières, l’évolution et la transformation du paysage de la Châtaigneraie au cours du XXe siècle. En utilisant le bois provenant de la coupe d’éclaircie d’une forêt familiale plantée de résineux au cours des années 1970 dans une commune voisine du Rouget, le projet assume que l’édifice soit essentiellement construit avec une essence de bois – ici le douglas – dont les forêts ont considérablement modifié l’agriculture, l’identité des paysages et la biodiversité.
La démarche engagée prend acte de la transformation des paysages et invite à penser que ces plantations, considérées au départ comme un moyen de remplir les vides d’un territoire en perdition, puis comme néfastes pour leur milieu, puissent aujourd’hui être regardées comme une opportunité : pour construire autrement, pour développer une économie locale, pour valoriser le bois d’œuvre dans la construction.
Le douglas est utilisé pour la structure, les bardages, les platelages et lattages. L’abattage et le débardage ont été réalisés par une entreprise forestière du Rouget, les billes de douglas débitées en Corrèze, les pièces de lamellé-collé assemblées en Aveyron, les charpentes montées par une entreprise locale. Le projet explore ainsi les possibilités offertes par les logiques de circuits courts.
Crédit documents graphiques : Atelier du Rouget
















































