Caf Cpam, Aurillac (15)
Lieu : 15 rue Pierre Marty, 15000 Aurillac Maître d’ouvrage : CAF / CPAM du Cantal Maître d’oeuvre : Atelier d'architecture Simon Teyssou, BREHAULT (bet fluides) Responsable de projet : Emilie Bernard Entreprises : LEYBROS , Démolition - cloisons doublages - peinture / BOUYSSE , Menuiseries intérieures bois S.AU.REV , Sols souples / ALPHA B , Signalétique / FORCLUM , Electricité ESPACE BUREAUTIQUE , Mobilier Surface SHON : 725 et 275 m² Calendrier : 6 Septembre 2010 Coût des travaux : 173 000 € HT et 142 000 € HT Crédit photographies : CChristophe Camus
CAF CPAM du Cantal
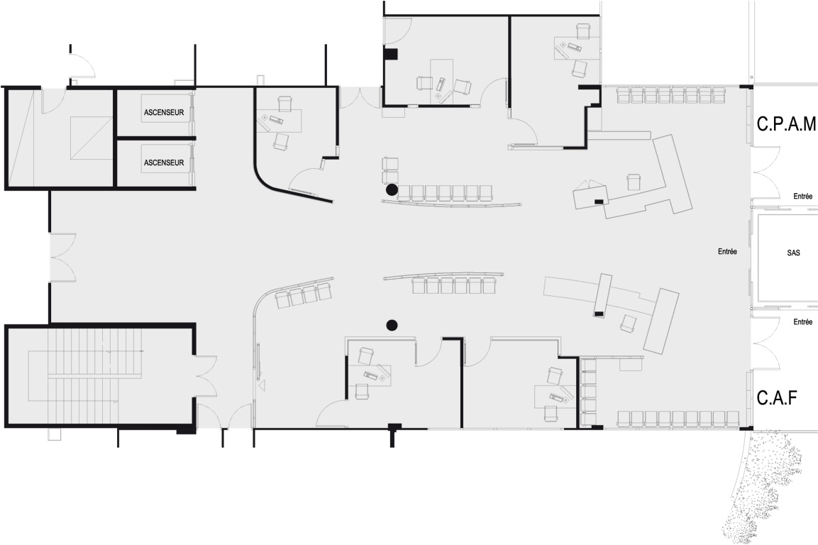
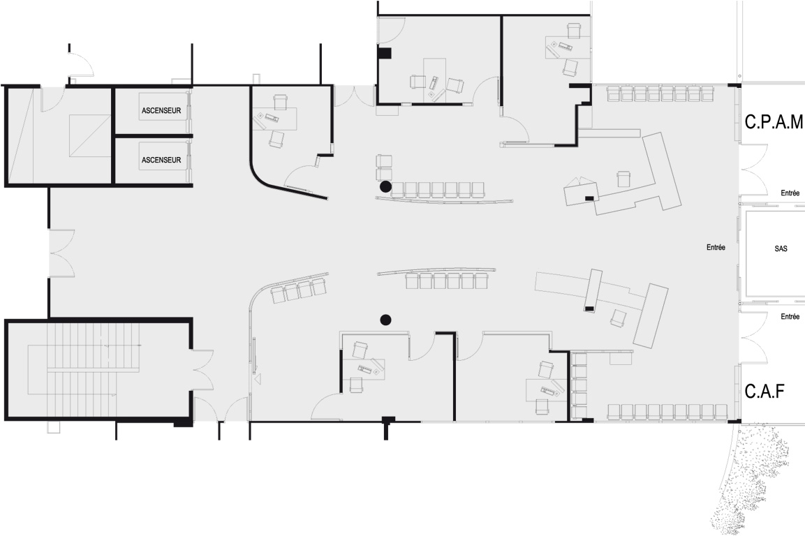
Restructuration de l’accueil de la Caf Cpam
Le projet pour les bureaux de la direction de la CAF du Cantal, est caractérisé par l’emploi de matières chaleureuses, de transparence et de filtres afin de redonner vie à des bureaux existants cloisonnés et à des circulations et des espaces secondaires borgnes. Des châssis vitrés en hêtre avec des stores en aluminium intégrés ouvrent les espaces tout en offrant une liberté d’intimité aux occupants. Les espaces communs secondaires tels que les salles de réunions et la salle de reprographie, s’ouvrent sur la « rue » intérieure rendue lumineuse par les cloisons vitrées. Les sols colorés et le hêtre des châssis confèrent une atmosphère domestique aux bureaux perdant ainsi leur image administrative banalisée. Au rez-de-chaussée, une nouvelle « rue centrale », dynamisée par des parois en bois courbes et ajourées, réorganise de manière naturelle l’espace commun d’accueil de la CPAM et de la CAF du Cantal. Les usagers sont ainsi orientés dès leur arrivée vers l’un ou l’autre des organismes social sans risque de se tromper. Cette nouvelle séparation des deux caisses ne s’est pourtant pas faite au détriment de l’espace et de la fluidité des circulations. Notre travail s’est avant tout attaché à réorganiser et hiérarchiser les accueils, en utilisant la qualité et la chaleur du bois, faisant ainsi d’un espace administratif banal un lieu d’exception.









