Reconstruction du gite d’hébergement du Col de Légal (15)
Lieu : Col de Légal, Saint-Projet-de-Salers (15140) Maître d’ouvrage : Communauté de Communes du Pays de Salers Maître d’oeuvre : Atelier du Rouget Simon Teyssou & associés (mandataire), BET 3B (BET Bois) SETERSO (BET Béton) BREHAULT (BET Fluides) Suivi des études et du chantier : Samuel Ducloux + Franck Bassin + Simon Teyssou Surface SHON : 1 411 m² Calendrier : Livré en 2020 Coût des travaux : 2 211 550€ HT
Le projet du Col de Légal consiste à redonner vie à un site touristique d’exception du paysage cantalien. Pour retrouver une attractivité certaine, le choix de la maîtrise d’ouvrage s’est porté sur la démolition du gîte et du foyer de ski de fond, vétustes et inadaptés au confort d’usage contemporain.
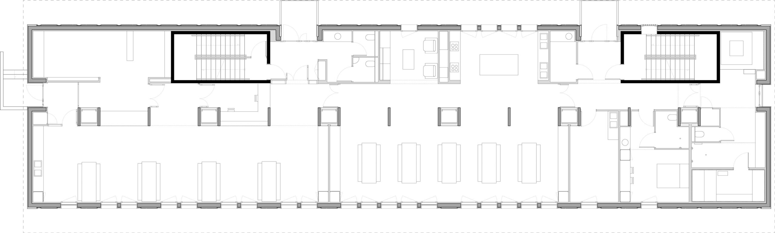
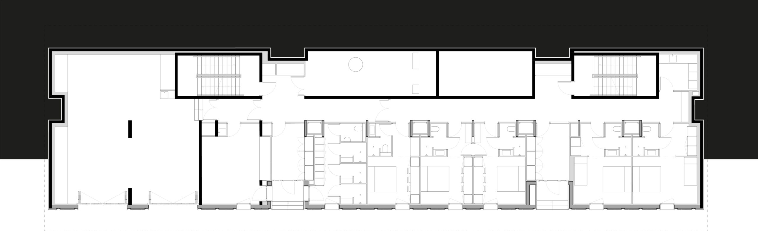
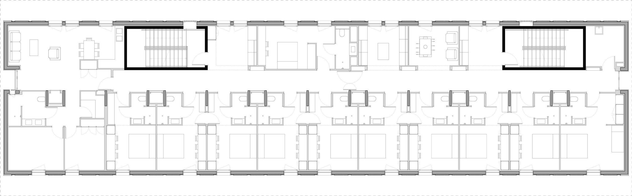
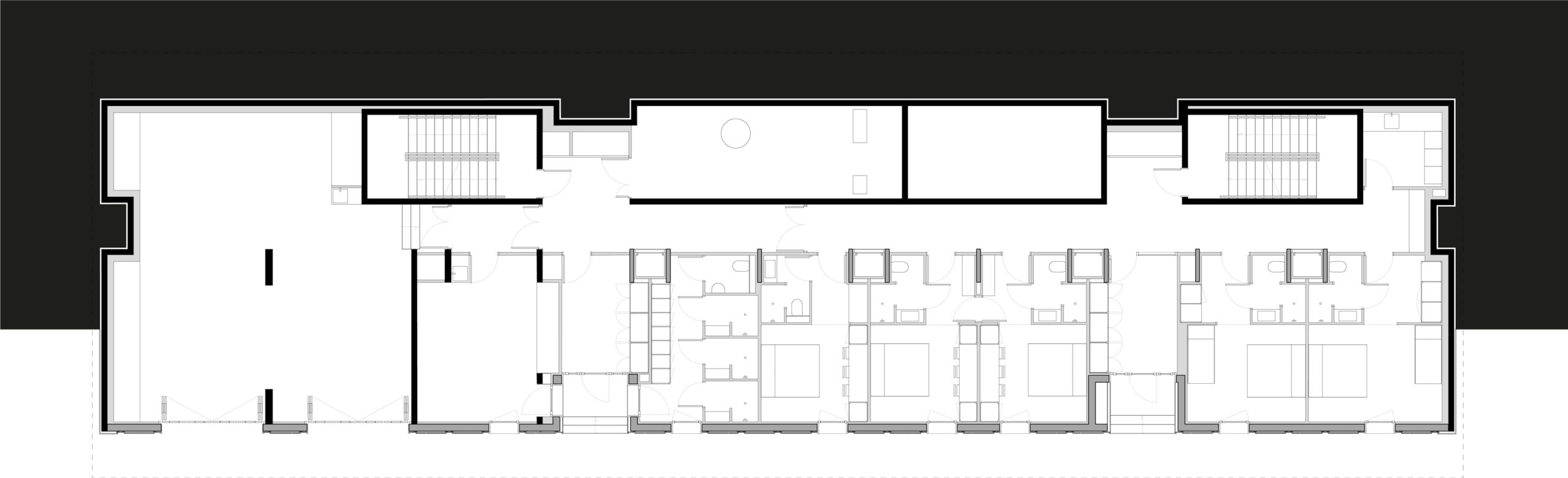
Le projet consiste en la création d’un nouvel établissement regroupant les deux programmes. La structure d’hébergement dispose d’une capacité d’accueil portée à 48 personnes pour recevoir des classes scolaires. Situé sur un terrain contraint par sa topographie et soumis à un climat de montagne, l’édifice s’adosse à la pente en s’implantant parallèlement aux courbes de niveaux. Cette disposition permet d’exposer les pièces de vie et les chambres au Sud pour chercher un rayonnement solaire favorable et des vues lointaines sur le grand paysage.En recul par rapport à la route départementale qui franchit le col, l’édifice laisse place à un vaste replat aménagé sobrement et mettant les usagers à l’abri de la circulation automobile.
Le projet est entièrement en structure bois (murs, planchers et charpente). Largement débordante, la couverture en zinc protège les murs gouttereaux en bois. A l’instar de l’architecture traditionnelle du Nord Cantal, les pignons sont bardés de métal pour éviter leur altération dans le temps.
Crédit documents graphiques : Atelier du Rouget



























