Espace Jean Labellie, Centre Culturel et de Loisirs, Le Rouget (15)
Lieu : 15290, Le Rouget Maître d’ouvrage : Communauté de communes de la Châtaigneraie cantalienne + Commune du Rouget-Pers Maître d’oeuvre : - Atelier du Rouget Simon Teyssou & associés (mandataire) - IGETEC (BET TCE + OPC) - BET 3B (BET structure bois) - SIGMA (BET acoustique) Suivi des études : Samuel Ducloux Suivi du chantier : Lisiane Chanut - Simon Teyssou Surfaces: 673m² Calendrier : Livré en 2021 Coût des travaux : 1 450 000 € HT Entreprises : Terrassement VRD : Claude Meallet / Gros-œuvre : Costa Ferreira Charpente bois - Ossature et Menuiseries extérieures : Bouysse Menuiserie Couverture - Bardage Zinc : Djilali / Etanchéité : Auritoit Serrurerie : C2M / Menuiserie intérieure - Mobilier: Créabois Cloisons - plafonds - peinture : Cambon / Carrelage - Faïences : Brunhes Jammes Sols souples: Sol 15000 / Chauffage - Plomberie - Sanitaires - Ventilation : Lavergne Electricité - Courants forts - faibles : Longuecamp
Espace Jean Labellie, Centre Culturel et de Loisirs du Rouget
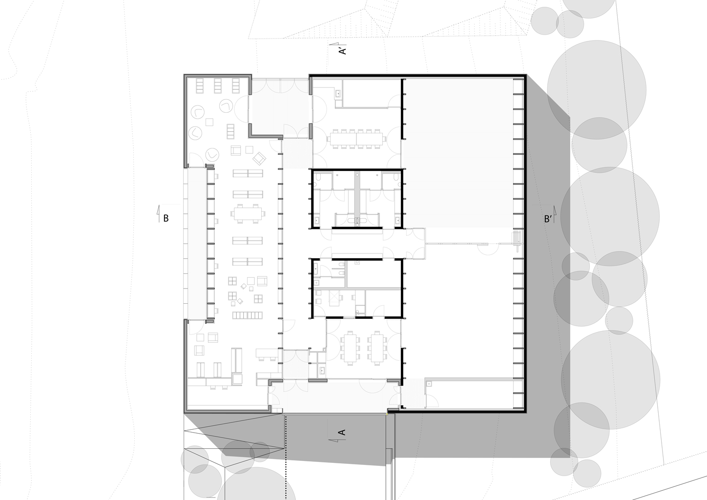
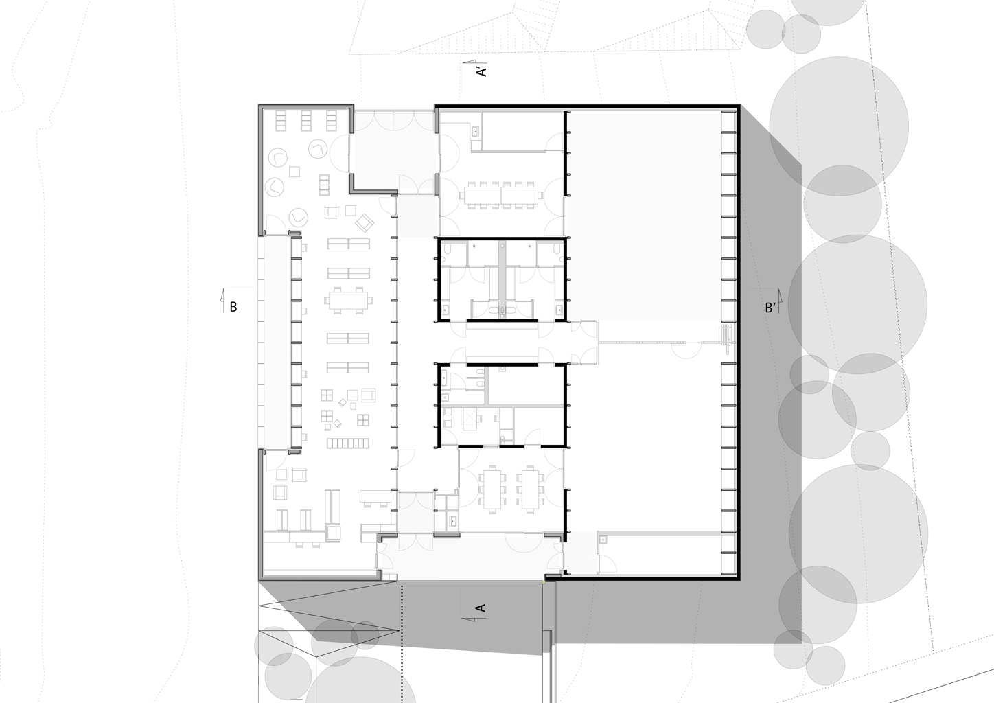
Porté par deux maîtres d’ouvrage, le projet réunit des programmes complémentaires dans un même édifice. Cette cohabitation positive permet une mutualisation de divers espaces et équipements.
Le volume de l’édifice, à plan carré, est simple. Sa coupe révèle une toiture à pente unique qui suit le profil du terrain naturel. Cinq creux sont percés dans le volume recouvert de bardage en zinc ondulé : un porche d’entrée à l’Est, une loggia au Sud, un patio à l’Ouest, une grande baie au Nord, et une toiture terrasse en dépression dans le toit apportant un éclairage indirect. Ces creux sont caractérisés par leur matérialité en bois.
La médiathèque occupe la partie Sud de l’édifice, ouverte sur le talweg. Elle est la plus basse sous-plafond. Les salles polyvalentes destinées à l’accueil des enfants et aux activités sportives sont placées au Nord pour bénéficier d’une grande hauteur.
En partie centrale se trouvent deux salles d’activités s’ouvrant respectivement à l’Est et à l’Ouest. Mutualisés, les locaux sanitaires et techniques sont placés sous la toiture terrasse. La structure en bois, composée de portiques rapprochés en lamellé-collé de douglas qualifie les espaces. Le noyau central en béton contrevente l’édifice tout en apportant une inertie thermique qui améliore le confort d’été.
A proximité de la mairie, de l’église, de l’école et du foirail réaménagé, ce nouvel équipement conforte la figure du parc du Rouget.
Crédit documents graphiques : Atelier du Rouget






















