La Semblada, habitat groupé participatif pour 7 familles à Clermont-Ferrand (63)
Lieu : éco quartier de Tremonteix, Clermont Ferrand (63) Maître d’ouvrage : La Semblada Maître d’oeuvre : - Atelier du Rouget Simon Teyssou & associés (architecte mandataire) - Atelier de Saint Céré Mathieu bennet & associés (architecte associé) - SETERSO (bet structure béton) - BREHAULT (bet fluide) Calendrier : Livré en 2019 Surface de plancher : 817.4 m² Surface utile : 876.41 m² Surface habitable : 766.67 m² Coût des travaux (hors auto-construction) : 1 365 000 € HT Entreprises : Terrassement VRD : GATP / Gros-œuvre : Chandeze Charpente bois - Ossature Bois - Bardage : Charles Taillandier Menuiseries extérieures : Defix / Etanchéité : AEC Couverture zinc: Djilali & fils/ Plafonds-Cloisons-Doublages-Peintures : Gouveia Menuiserie intérieure: Gradwohl / Carrelage-Faïences : Brunhes-Jammes Sols souples : K-Ro-Deco / Serrurerie : BP Métallerie / Electricité : Resimont Chauffage-Plomberie-Sanitaires-Ventilation : Mathieu Giraud
La Semblada, habitat groupé participatif pour 7 familles à Clermont Ferrand (63)
La Semblada est le nom donné au groupe formé par sept familles clermontoises désireuses de construire un projet d’habitat participatif dans l’écoquartier de Trémonteix à Clermont-Ferrand. La Semblada est riche d’une diversité générationnelle, socio-professionnelles et culturelle. Une étude de faisabilité a été proposé au groupe pour définir plus précisément le programme, quantifier les besoins et dessiner une première esquisse du projet. Cette étude préalable a été suivie en 2014 d’un contrat de maitrise d’œuvre classique. Le chantier a débuté en janvier 2017.
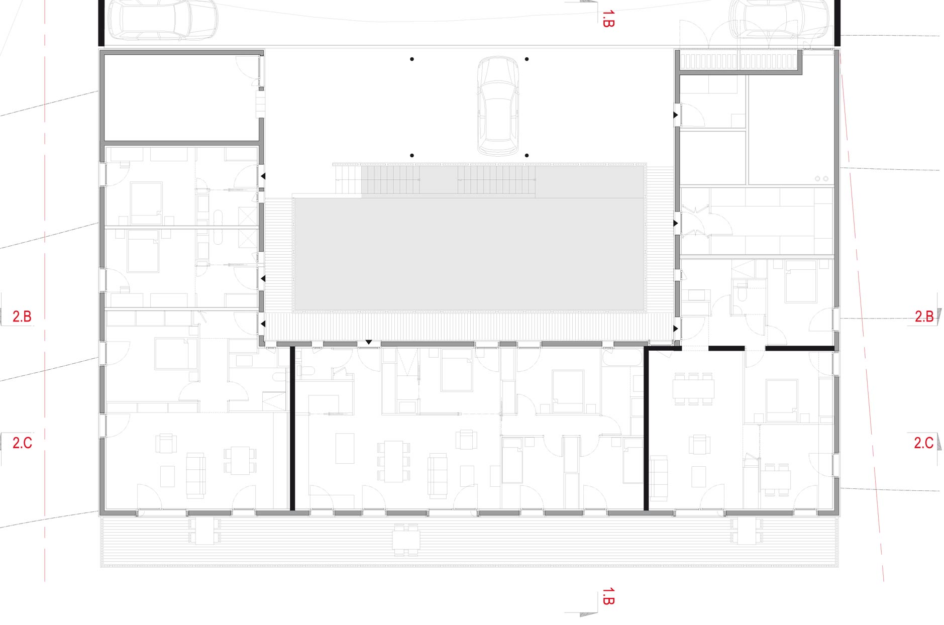
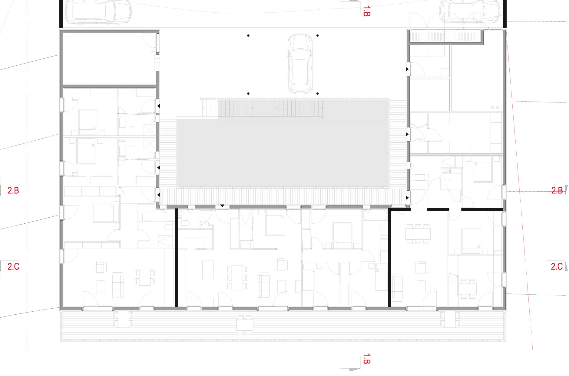
Une méthodologie de travail spécifique a été mise en place pour définir le programme et réaliser l’étude de faisabilité. Une fois les entretiens collectifs et individuels réalisés, le programme a été formalisé. Les besoins ont été quantifiés. Un montant du coût des travaux a été estimé par un ratio au mètre carré. Le programme a été validé par l’ensemble des familles après de nombreux ajustements. Il a servi de base à la conception de l’esquisse. Le postulat choisi pour démarrer le projet a consisté à penser que sa mise en forme devait transcender et dépasser les intérêts particuliers de chaque famille pour générer une morphologie unitaire clairement identifiable, qui soit l’expression du projet commun. La figure à patio est rapidement apparue comme un moyen pertinent pour caractériser le projet collectif, de répondre aux contraintes et atouts du site et aux données du programme.
Les questions constructives et de ressources ont animé la maitrise d’ouvrage et l’équipe de maitrise d’œuvre. La prise en compte des données environnementales a été considérée comme une opportunité de projet, susceptible de faire émerger une architecture singulière. Le projet développe une forme d’hybridation de structures en béton et en bois. Les structures en béton sont valorisées pour l’adaptation au sol, pour leur performance acoustique, leur inertie thermique et leur matérialité. Les structures en bois recherchent, au contraire, une forme de légèreté, un faible impact environnemental et une rapidité de mise en œuvre.
Crédit documents graphiques : Atelier du Rouget









































