Vestiaire du stade d’athlétisme, Aurillac (15)
Lieu : Aire événementielle de la Ponétie, 15000 Aurillac Maître d’ouvrage : Communauté d’agglomération du bassin d’Aurillac Maître d’oeuvre : Atelier du Rouget Simon Teyssou & associés, IGETEC (bet TCE) Responsable de projet : Mathieu Bennet Surface SDP : 245m² Calendrier : livré en 2017 Coût des travaux : 532 000€ HT
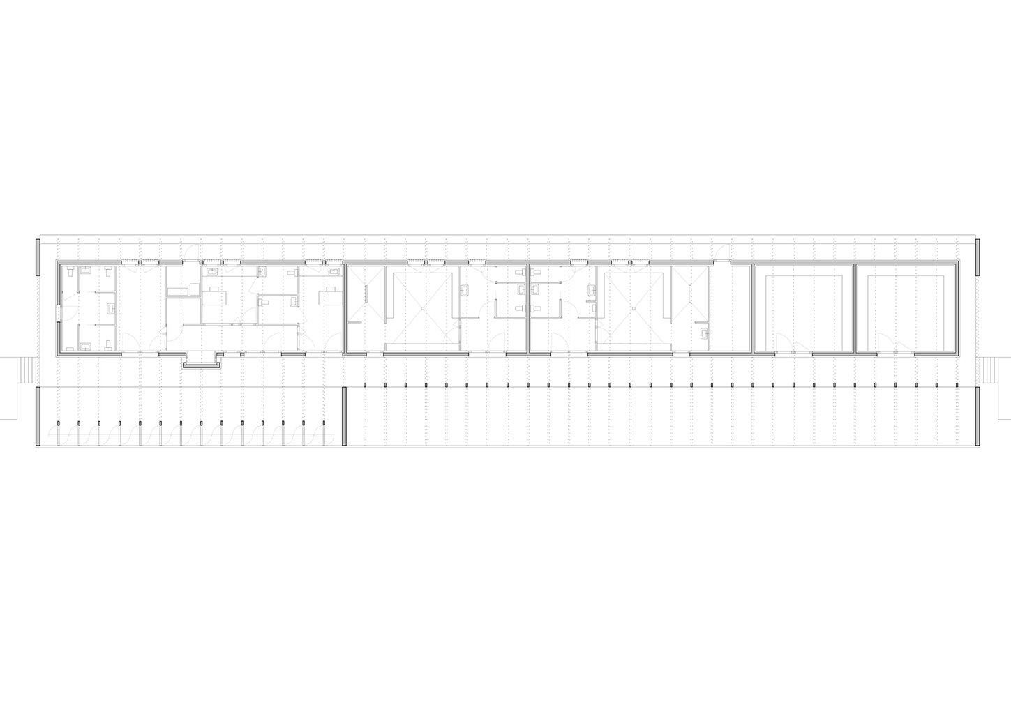
L’équipement sportif du stade d’athlétisme de la CABA comprend des vestiaires, un rangement pour le matériel, des bureaux, un auvent abritant le public et un espace d’échauffement pour les coureurs. L’édifice implanté le long de la piste est conçu comme une halle sous laquelle se glisse un volume linéaire comprenant le programme hors d’air. La halle est composée de portiques resserrés en douglas qui produisent un rythme cinétique le long de la piste. La conception des portiques permet la réalisation d’une large toiture en porte-à-faux abritant les gradins amovibles et l’espace d’échauffement lequel est muni de volets brise-vent montés sur pivots. Pour des questions de pérennité et d’entretien des matériaux de façades, l’enveloppe de l’édifice exposée aux intempéries est revêtue de zinc naturel tandis que les murs abrités sous la halle sont en panneaux trois plis mélèze.
Comme pour plusieurs autres projets conduits par cette agence d’architecture implantée au Rouget dans Cantal, le choix du matériau de construction témoigne, à travers l’exploitation de ses matières premières, de l’évolution et de la transformation des paysages du Massif Central. Consécutive à l’exode rural, la plantation de résineux a généré une mutation du territoire. En utilisant le bois provenant de gisements locaux, le projet assume que l’édifice soit construit avec des bois de plantation dont les forêts ont modifié l’agriculture et l’identité des paysages. Il s’agit de considérer ces plantations comme une opportunité pour construire autrement et contribuer au développement de la filière bois locale. Les structures en bois recherchent un faible impact environnemental et une rapidité de mise en œuvre. Le bois est aussi valorisé pour ses capacités de stockage du carbone et son bilan écologique global.
Les portiques en bois lamellé-collé sont en douglas. Les murs à ossature bois sont en pin originaire du Massif Central de section 45 x 180mm. L’isolation primaire de 180mm s’insère entre les montants des murs. Une contre-isolation de 90mm est rajoutée à l’intérieur. Un pare-vapeur indépendant est interposé entre les deux isolants. Il s’agit ici de soigner la performance thermique de l’enveloppe. Toutes les menuiseries extérieures sont réalisées à partir de carrelets bois contrecollé en pin sylvestre. Le bardage des murs et les volets sont réalisés en panneaux trois plis mélèze. Les eaux de pluies sont stockées dans une noue à l’arrière de l’édifice plutôt que collectées par des tuyaux.
Crédit documents graphiques : Atelier du Rouget




















