20 habitations groupées, Brioude (43)
Lieu : Rue de la Bageasse, 43100 Brioude Maître d’ouvrage : SA HLM Foyer Vellave Maître d’oeuvre : Atelier du Rouget Simon Teyssou & associés mandataire et Jean-Luc Daureil architecte DPLG co-traitant phase chantier, BETEC (bet structure), AB2R (bet vrd), ACTIF (bet fluides), ORPHEA (bet acoustique) Responsable de projet : Franck Bassin Entreprises : SAS CHEVALIER , Terrassement généraux - réseaux divers - revêtements - bordures L'ENTREPRISE ELECTRIQUE , Désserte basse tension éclairage / SARL FERREIRA , Gros-oeuvre béton CAILLAUD BOURLEYRE , Charpente ossature bois - bardage - menuiseries intérieures et extérieures bois SERRURERIE DE LA MARGERIDE , Charpente métallique - serrurerie SARL SEBC , Etanchéité - couverture / ETS LEYBROS , Cloisons doublages - peinture - vitrification SARL PGB , Sols souples / IDEE TRAVAUX SA , Carrelage - faïence SARL GIGNAC , Plomberie - sanitaire - chauffage - vmc / SARL ELEC'JEAN , Electricité SENEZE CHARRIOT , Travaux paysagers Surface SHON : 2 196.31 m² Coût des travaux : 3 245 851 € HT Calendrier : Livré en 2012 Performance énergétique : BBC Crédit images 3D : Peter O'Brian, Nicolas Lamouroux Publication : Valeurs d'exemples, palmarès régional 2013 Brioude, 180° Bois, tour d'horizon de 60 constructions bois.
Selectionné dans le cadre de l’appel à projet bâtiments démonstrateur d’énergie, ADEME et Conseil Régional d’Auvergne (2010).
1er prix dans la catégorie logements individuels groupés : Lauriers de la construction bois 2013
20 habitations individuelles groupées BBC
Principes urbains
L’aménagement urbain s’appuie sur les particularités des parcelles concernées par le projet. Deux voies principales desservent l’ensemble des habitations projetées tout en favorisant les évolutions possibles du tissu urbain sur les parcelles contiguës. Une troisième voie, plus modeste dessert le versant de la Prade.
Adossée à une rase et quelques vestiges d’une ancienne haie bocagère marquant la limite parcellaire, une voie orientée Est/Ouest est créée au nord du terrain pour desservir le plus grand nombre d’habitations tout en rendant possible la desserte d’une opération immobilière future sur la parcelle voisine au nord, de l’autre côté de la rase. Cette proposition anticipe les besoins futurs en matière d’habitat pour éviter une multiplication de voies nouvelles. L’ancienne rase est aménagée sous forme d’une noue paysagère recueillant les eaux pluviales de la nouvelle voie et des toitures du bâti. La nouvelle voie permet aussi de libérer le terrain au sud sur lequel s’implantent les habitations, les jardins prolongeant les pièces de vie au sud et l’espace commun, ainsi éloigné de la circulation automobile.
Une deuxième voie prolonge la rue de la Mayasse, en pied de talus bordant le bas du coteau de la Prade, et permettra à terme de desservir les parcelles agricoles situées au sud du terrain concerné par le projet, et à plus long terme encore de trouver un point de raccordement avec le chemin rural de Côte Rouge conformément au PADD annexé au PLU de la ville. Cette voie se termine provisoirement par une placette qui permet de desservir les habitations implantées au centre de la parcelle principale. Une haie bocagère longe cette voie et constitue un premier plan aux habitations implantés en pied du coteau. La haie, composée d’essences arbustives essentiellement (pruniers myrobolans, alisiers blancs, sureaux, églantiers, rosiers sauvages, prunelliers, cornouillers, noisetiers, amélanchiers) et de quelques érables champêtres, marque la rupture de pente du coteau.
Au cœur de la parcelle principale se trouvent les jardins privatifs et un espace collectif comprenant une aire de jeu pour enfants. Des cheminements piétons desservent les jardins et les espaces partagés depuis la nouvelle voie au nord, la placette et la rue de la Bageasse.
A l’ouest, une troisième voie desservant deux lots à construire implantés à mi versant du coteau permet aussi de prolonger, au travers d’anciennes vignes en friches, le parcours piéton jusqu’au lycée implanté sur le plateau. Le projet est conçu de telle sorte que les déplacements des piétons et plus particulièrement des enfants soient protégés de la circulation automobile.
Des plantations d’arbres ponctuent les espaces publics et les jardins privatifs : arbres fruitiers dans les jardins privatifs, saules, saules argentés, tilleuls, poiriers sauvages sur l’espace public central. Un bosquet de noyers termine la promenade à l’ouest et annonce l’espace public minéral servant de desserte aux maisons en accession à la propriété et d’aire de retournement.
Figures architecturales
Alors que le programme du maitre d’ouvrage demandait la conception de maisons individuelles ou doubles desservie par une voie centrale, le projet s’oriente dés le départ vers un habitat groupé plus complexe partageant des espaces extérieurs communs reliés par des cheminements piétons.
Le projet articule trois figures bâties :
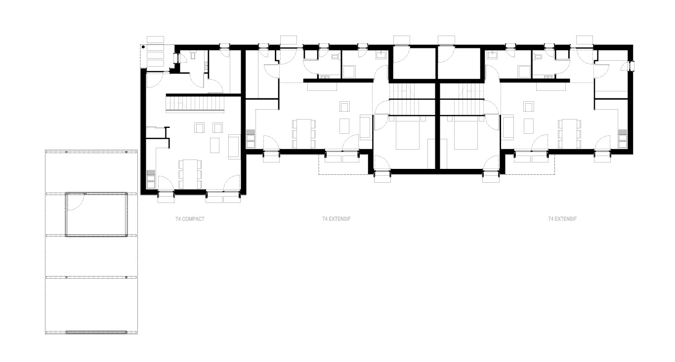
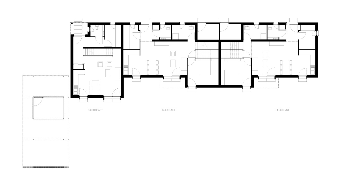
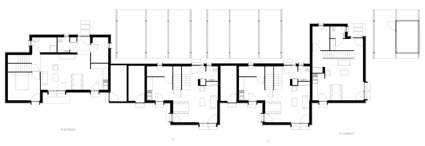
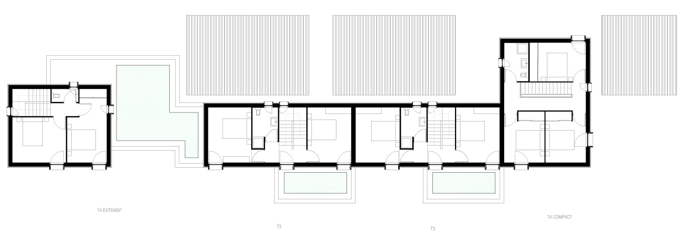
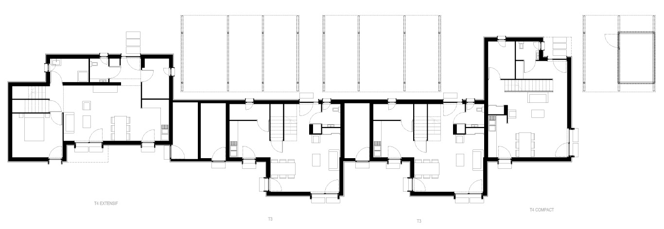
1- Un front bâti continu le long de la nouvelle voie au nord de la parcelle principale ; cette figure linéaire est constituée d’une juxtaposition de 13 habitations groupées aux typologies variées.
2- Une figure en équerre au sud de la parcelle, composé de 3 habitations, de type 4, et d’une annexe regroupant l’ensemble des abris fermés et auvents pour les voitures.
3- Une figure linéaire de 4 habitations groupées 2 par 2.
Le premier ensemble d’habitations locatives dessine un front bâti formé de 9 T4 et de 4 T3 duplex. Deux typologies de T4 en duplex et une typologie de T3 composent l’ensemble. Des abris fermés privatifs (rangement des outils de jardin, vélos, etc…) et des auvents abritant les véhicules ont été préférés à des garages fermés. Ils sont implantés entre le front bâti et la voie de desserte et contribuent à la fabrication d’un seuil entre espace public et espaces privatifs. Un cheminement piéton longe le front bâti. L’ensemble bâti est conçu de telle sorte que chaque espace de vie au rez-de-chaussée des habitations puisse être prolongé par un espace extérieur privilégié. Les habitations conçues selon des principes bioclimatiques s’ouvrent largement au sud. Les espaces intérieurs secondaires (entrées, celliers, salles de bain, sanitaires, escaliers constituent une « double enveloppe » protégeant les espaces principaux (séjour, salle à manger, chambres) des rigueurs du climat.
Un groupe de 3 habitations locatives de type 4 et leurs annexes forment la deuxième figure en équerre. Elle se distingue par deux volumes : l’un renfermant les logements orientés plein sud selon des principes équivalents au premier ensemble construit ; l’autre, contenant les annexes (abris pour voitures et abris jardin) est implanté orthogonalement par rapport aux habitations et s’ouvre sur la placette.
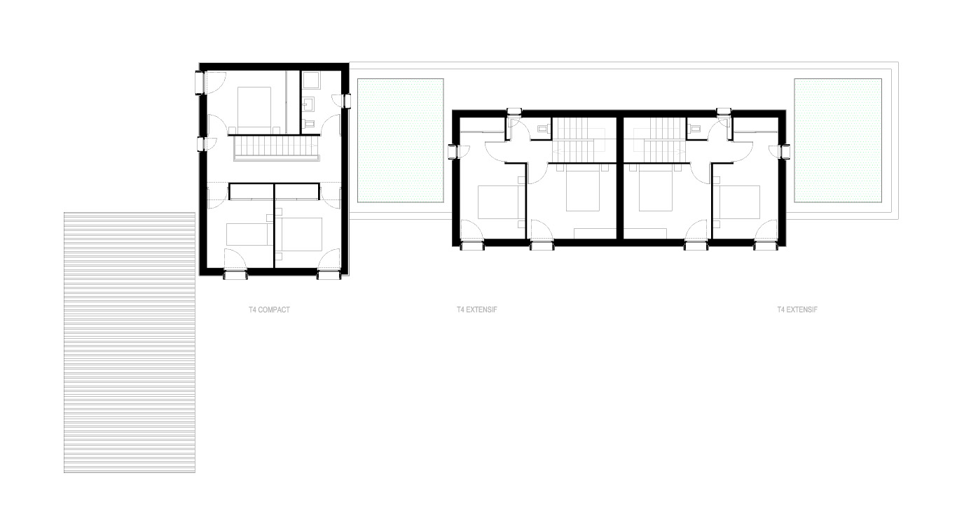
Les 4 habitations en accession à la propriété sont desservies par la voie longeant le pied du versant du coteau de la Prade. Groupées deux par deux elles s’ouvrent aussi bien au sud-ouest sur des jardins privatifs qu’au nord-est, orientation vers laquelle la vue est la plus emblématique (Monts du Livradois). Elles sont implantées à une altitude correspondant à la partie supérieure du talus et surplombe ainsi quelque peu la voie et des deux autres figurent construites.
Enveloppe et structure du bâti, aménagements extérieurs : une approche environnementale du projet
Plutôt que de répondre strictement à la réglementation thermique en vigueur au départ du projet (RT 2005), l’ensemble des logements sont labélisés BBC EFFINERGIE 2005
Les habitations ont été conçues en ossature bois de section 45 x 180 mm d’épaisseur permettant la mise en place d’un isolant occupant la totalité de l’épaisseur des caissons. Une contre ossature a été fixée sur l’ossature primaire, précédemment décrite, permettant la mise en place d’un complément d’isolation de 60 mm d’épaisseur supprimant ainsi les ponts thermiques constitués par les montants et les traverses en bois ainsi que les rehausses en béton.
Les toitures terrasses de la totalité des habitations sont végétalisées. Il s’agit d’une végétalisation dite extensive, le substrat est de faible épaisseur, les végétaux qui s’y développent (sédums) sont de faible hauteur et nécessitent peu d’entretien et pas d’arrosage. L’épaisseur du complexe et le phénomène d’évapotranspiration apportent un confort thermique aussi bien hivernal qu’estival, ainsi qu’une protection accrue de l’étanchéité (absorption des chocs thermiques).
Les menuiseries extérieures sont en bois lamellé collé mélèze. Les vitrages doubles, à isolation renforcée, sont peu émissifs et un gaz argon remplit le vide entre les verres composant les baies vitrées. Une occultation des baies et fenêtres est assurée par des persiennes en pin sylvestre protégés par des cadres en bois capotés en zinc prépatiné.
Favoriser l’énergie solaire passive
L’objectif premier est d’abord d’optimiser l’enveloppe du bâtiment comme moyen de gestion de l’énergie solaire plutôt que de mettre en œuvre des appoints nécessaires y compris des dispositifs solaires actifs.
Par leur orientation, les espaces principaux (séjours / salles à manger et chambres) bénéficient des apports d’énergie solaire passive. Les habitations étant largement vitrées côté sud, les apports d’énergie solaire passive sont réels et sont stockés grâce à l’inertie des dallages et des murs de refend permettant ainsi une restitution différée des gains solaires.
Une structure en bois : une ressource locale et un moyen de stocker le carbone
La simplicité du système constructif envisagé – ossatures en bois de section 45 X 180 mm pour les parois verticales, solivages en bois massif pour les planchers intermédiaires– a favorisé l’utilisation de bois local et la réalisation des structures par une entreprise locale. L’essence utilisée pour les bois d’ossature et les solivage est le sapin. Naturellement durable (classe 3), le douglas purgé d’aubier et non traité est utilisé pour le bardage vertical. Outre la mise en œuvre de ressources locales, l’utilisation du bois comme mode constructif a permis de stocker une quantité importante de carbone dans les constructions.
Confort d’été
Afin de compenser l’absence d’inertie thermique de l’ossature bois, la totalité des murs de refends sont construits en béton banché garantissant par ailleurs un confort acoustique entre habitations. Les chapes en béton du RDC complète l’inertie thermique des murs. Le confort d’été est aussi assuré par les toitures terrasses végétalisées. Les baies vitrées orientées au sud sont munies de persiennes en bois pliables permettant de contrôler le degré d’exposition solaire des vitrages.
Gestion de l’eau
La création de nouvelles voies, de parkings, d’allées, de toitures, produit habituellement des surfaces étanches. Cette imperméabilisation oblige à la création d’ouvrages de collecte des eaux de pluie, de traitement et d’infiltration éloignés des points de chute, avec un risque d’engorgement des systèmes souterrains, voire d’inondation.
Intégrer la gestion des eaux de pluie, se traduit, dans le projet, de différentes manières.
L’objectif a essentiellement été de limiter les surfaces étanches :
– en ayant recours aux toitures végétalisées ; la végétation absorbe une bonne partie des eaux de pluie, stocke et filtre les eaux excédentaires avant de les libérer petit à petit,
– en mettant en œuvre des revêtements de surfaces perméables sur assise de fondation drainante tels que le stabilisé perméable pour toutes les voies piétonnes, certains espaces publics, les allées desservant les habitations ou des dalles alvéolées en béton pour les emplacements de stationnement,
– en développant la biorétention de l’eau, c’est à dire favoriser l’infiltration des eaux de ruissellement, la filtration, le stockage et la captation par la végétation directement à la source sans reporter le problème dans la distance,
– en créant des noues paysagères, qui drainent l’eau de ruissellement en surface et favorisent son infiltration dans le sol,
– les haies interceptent l’eau de pluie sur la surface des feuilles, une partie de cette eau retourne dans l’atmosphère en s’évaporant.
Le projet porte une attention particulière à la collecte, le transport, le stockage et la libération de l’eau de pluie afin d’aboutir à une réalisation à la fois durable et visuellement agréable et valorisante. Les espaces extérieurs périphériques sont abordés en tant qu’aménagements paysagers et « jardins de pluie ».
Les clôtures
Au grillage à maille soudée traditionnel, ont été préférées des clôtures de type girondine en châtaignier. Ces clôtures sont utilisées pour délimiter les jardins privatifs. Outre leur aspect agréable, ces clôtures sont choisies pour leur faible consommation énergétique à leur fabrication et mise en œuvre.
Crédit documents graphiques : Atelier du Rouget





























