EHPAD, Arlanc (63)
Lieu : 13 place de l'ouche, 63220 Arlanc Maître d’ouvrage : Maison de retraite Arlanc & Société de l'équipement de l'Auvergne Maître d’oeuvre : Atelier d'architecture Simon Teyssou mandataire et Boris Bouchet Architecte, BPR Europe (bet structure béton et fluides), BET 3B (structure bois) Entreprises : SARL CHANTELAUZE , Démolition - désamiantatge / DAUPHIN TP , Terrassement - vrd MALLET BTP , Démolition fondations - Gros-oeuvre / MEYNADIER , Ravalement façade VEYRIERE CHARPENTE , Ossature bois / EURL DOUFOUR BOIS , Couverture - zinguerie BEAUDONNAT , Charpente bois / BOUYSSE , Occultation bardage COUVRADOME , Etanchéité / MEUNIER , Menuiseries extérieures bois AST , Serrurerie / PERETTI , Cloisons - doublages - peinture - carrelage - faïnce ETS CHEVARIN , Menuiseries intérieures bois - menuiseries d'agencement SA SALESSE , Sols souples / AUVERGNE ASCENSEURS , Ascenseurs SA MATHIEU GIRAUD , Plomberie - sanitaire - chauffage - ventilation - chaufferie fuel COMPTE , Chaufferie bois / ELECTRICITE GENERALE PEILLARD , Electricité - désenfumage Surface SHON : 3 860 m² Calendrier : Réceptionne Mars 2014 Coût des travaux : 5 612 500 € HT Performance thermique de l'extension : THPE Publication : Valeurs d'exemples, palmarès régional 2013 AMC, septembre 2014 Bois et réhabilitation de l'enveloppe
Maison de retraite, Arlanc
Extension et rénovation thermique par l’extérieur en structure bois sur bâtiment existant
Situation :
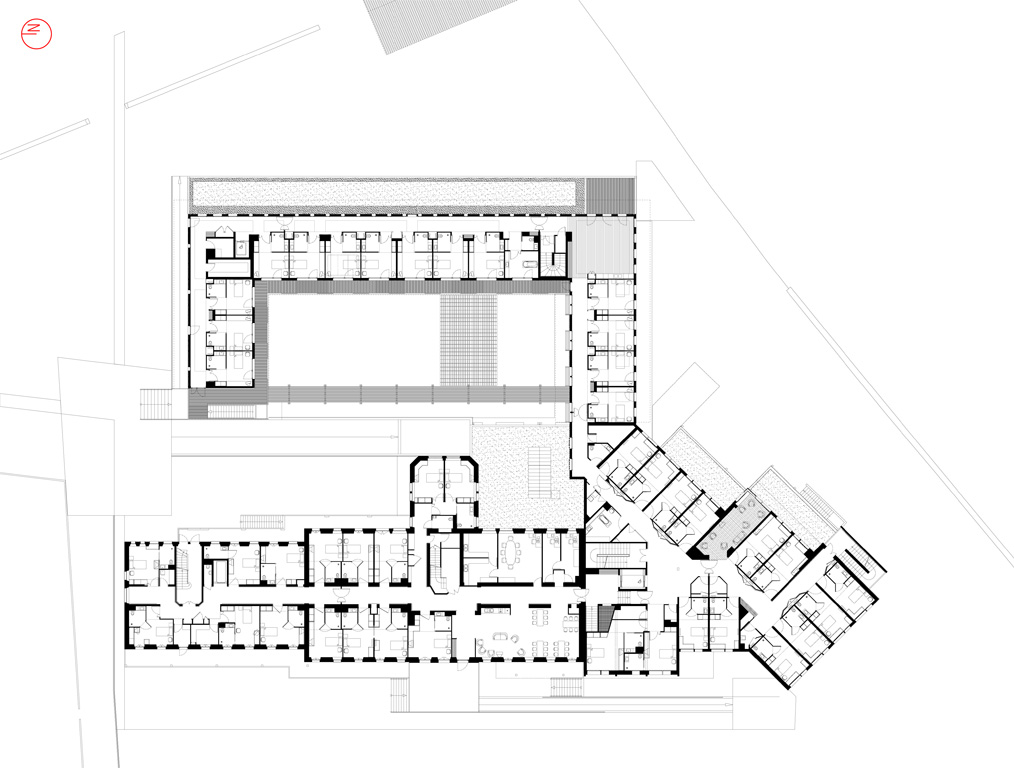
La maison de retraite d’Arlanc est composée, avant sa restructuration, de deux entités distinctes bien qu’accolées : un ancien hospice de la fin du 19ème siècle comprenant un corps principal et deux ailes symétriques et une extension des années 1980 caractérisée par une fragmentation des volumes, une composition en plan à 45° par rapport au plan du bâtiment d’origine, un principe structurel par refends en béton armé entre les chambres.
En novembre 2007 est lancé un concours d’architecture visant à la restructuration complète de l’établissement. Le projet a pour but d’individualiser l’ensemble des chambres et d’augmenter la taille des chambres trop petites.
Une nouvelle extension en bois comprenant 24 chambres est créée à l’Est de l’ancien hospice autour d’une cour accessible aux résidents. Une nouvelle chaufferie en bois indépendante est aménagée dans un ancien hangar du 19ème siècle. Ces deux constructions constituent la première phase des travaux entrepris à partir de février 2010.
La deuxième tranche de travaux débute en février 2012 et vise à la restructuration de la première extension des années 1980. Trop réduites, les chambres sont agrandies en façade. Outre l’agrandissement des chambres, ces travaux ont permis d’améliorer sensiblement la performance thermique de la construction, d’agrandir les ouvertures des chambres et de reconsidérer l’esthétique des façades.
La restructuration de l’ancien hospice a débuté au printemps 2013.
Conception :
L’extension des années 1980 étant caractérisée par un principe constructif composé de refends, façades et planchers en béton armé avec isolation intérieure uniquement, la construction existante multiplie les ponts thermiques aux jonctions entre les murs de façade et les refends et entre les façades et les planchers béton. A ces défauts s’ajoutent les ponts thermiques constitués par les balcons maçonnés en porte à faux sur les façades.
Le concept d’amélioration thermique du projet est développé de telle sorte que les espaces intérieurs soient agrandis vers l’extérieur et que la totalité des ponts thermiques soit supprimée par la mise en œuvre d’une nouvelle enveloppe déportée de la façade d’origine.
Le mode opératoire a été le suivant : suppression des façades en béton, préfabrication des murs en ossature bois en atelier, pose des murs voiles à ossature bois en porte à faux sur le rez-de-chaussée par scellements chimiques dans les abouts de refend, mise en œuvre des planchers et des murs de façades munies en atelier d’un pare-pluie, pose de la couverture et des menuiseries extérieures, pose du bardage. Le nouveau dessin des façades affirme la trame des murs de refends et la répartition des chambres par un relief du bardage en bois qui compose la vêture extérieure.
Construction et montage :
Il est à noter que le cahier des charges ne demandait pas une performance thermique supérieure à la réglementation en vigueur au moment du concours (Réglementation Thermique 2005 – RT 2005). Les architectes ont proposé, dés la phase concours, une performance thermique accrue pour la nouvelle extension et la réhabilitation de l’extension initiale des années 1980 tout en restant dans l’enveloppe budgétaire. Une performance de type « Très Haute Performance Energétique » (THPE) a été recherchée, à savoir une réduction de 20% des besoins énergétiques par rapport à la réglementation en vigueur.
Les nouvelles façades sont réalisées à partir de panneaux à ossature bois de 150 mm d’épaisseur avec panneaux de contreventement. Les caissons sont remplis avec 150 mm d’isolation en laine minérale. Un pare vapeur indépendant recouvrent l’isolant primaire et assure l’étanchéité à l’aire de la construction. Une contre ossature avec isolation supplémentaire de 60 mm d’épaisseur est réalisée côté intérieur. Des plaques de plâtres assurent le parement intérieur.
A l’extérieur, un bardage en mélèze exploité et scié localement est posé selon un calepinage précis prolongeant ainsi le dessin des panneaux de bardage préfabriqués mise en œuvre sur la nouvelle extension.
Les menuiseries extérieures sont réalisées à partir de profilés 68 mm en trois plis mélèze lamellé collé et aboutés pour valoriser les ressources locales. Une scierie locale a été en capacité de produire les profilés en mélèze pour le groupement d’entreprises de charpente /ossature bois /menuiseries extérieures bois.
Crédit photos de chantier : Atelier du Rouget - Avril 2013 et Juillet 2011
Témoignage de Lou SAINTAGNE – Octobre 2012
« (…)Depuis plusieurs mois je cherche un lieu de (fin de) vie pour mon papa, dans le Puy de Dôme. (…)
Au mois d’Août, j’ai pris dix jours pour pouvoir faire le tour de ces établissements, avec ma maman, avant d’accepter un jour une place disponible.
Bon nombre d’établissements ayant dû se « remettre aux normes », nous avons principalement visité des bâtiments impeccables où tout est bien propre, bien d’équerre, bien technique… et totalement dépourvu d’âme ! (ne parlons pas d’une pensée construite ni encore moins d’originalité).
Et puis nous sommes arrivés à Arlanc (qui était encore en travaux). Dès l’entrée, avec les marches (pas trop hautes) et la (belle) porte en bois, on sent qu’on arrive « ailleurs » ! Dès qu’on marche sous la « tonnelle » en bois, on le sait, qu’on est « ailleurs » ! Une fois entrés, on va de (bonnes) surprises en ravissements ! Comment ? On peut donc réaliser pour les personnes âgées dont notre société fait si peu de cas, des vrais lieux de vraie vie ?? Des lieux où on se soucie du bien-être de leurs dernières années ? Où on a fait le pari que la beauté adoucirait la peine d’avoir à quitter son chez-soi… Et tout ça ne serait pas réservé qu’aux riches mais resterait accessible aux gens modestes ? Venez me pincer, je dois rêver !
Il n’y a pas de place disponible à Arlanc pour le moment, je ne sais donc pas si papa pourra profiter un jour de ce beau lieu de vie mais je vous remercie d’avoir créé un endroit aussi harmonieux, aussi paisible et aussi enchanteur. Et je remercie la direction de l’établissement d’avoir fait appel à vous… (…)
Merci pour le rêve… et pour la réalité !
Bien cordialement, »
Extension et restructuration d’une EHPAD
L’extension des années 1980 de la maison de retraite (l’ancien hospice) génère aujourd’hui de multiples contraintes et dysfonctionnements qui doivent être résorbés. La nouvelle extension est considérée comme un moyen de faire émerger un projet d’établissement unifié où chaque unité fait partie d’un tout indivisible. Ainsi, l’aile des années 1980 est placée à l’articulation entre l’ancien hospice et la nouvelle extension et, ensemble, les trois corps de bâtiment concourent à la création d’une vaste cour intérieure de plain pied avec le rez-de-chaussée de l’extension des années 1980 et de la nouvelle extension. Protégée, cette cour est aménagée en jardin thérapeutique à l’intérieur duquel les résidents et les visiteurs peuvent s’asseoir sur des bancs, se retrouver en famille en dehors de la chambre, se reposer ou déambuler. Cette composition spatiale fait écho au paysage de la vallée de la Dore orientée nord /sud, bordée à l’ouest par les Monts du Livradois et à l’est par les Monts du Forez. La composition est une exacerbation à l’échelle humaine de cette orientation nord / sud de la vallée qui a imprimé sa direction dans le système d’implantation du bâti. Plutôt que de concevoir une structure traditionnelle en maçonnerie avec isolation rapportée à l’intérieur, nous avons conçu la nouvelle extension en ossature bois afin de valoriser les ressources locales, acte essentiel de développement durable. La mise en ouvre d’une structure en ossature bois permet en outre de dépasser le cadre de la réglementation thermique 2005 puisque le coefficient de résistance thermique des murs proposés est largement plus performant qu’une construction conventionnelle en maçonnerie avec isolation intérieure rapportée garantissant ainsi des économies d’énergie. Une logique identique nous a conduit à penser la réhabilitation de l’extension des années 1980 en bois par des « greffes » prolongeant les chambres existantes, ainsi mises aux normes. Au delà d’une réponse réglementaire donnée à l’obsolescence des chambres, il est envisagé une isolation rapportée par l’extérieur supprimant l’ensemble des ponts thermiques de la construction.
Crédit documents graphiques : Atelier du Rouget


























































